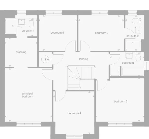
5 bedroom detached house
The Grayford OFFERS AVAILABLE 33ft Open plan kitchen/dining/family room, Laundry room, 2 En-suite Bathrooms, Double Garage The impressive hall introduces an outstanding residence. The private study and stylish lounge complement a family kitchen and dining area with french doors. There is a laundry, a bathroom with separate shower, two of the five bedrooms are en-suite, and one has a walk-through dressing room, this is a distinguished home filled with prestigious features. Langley Chase is our latest development coming to Derby, positioned next to our previous development Langley Country Park. This site will offer 2, 3, 4 and 5 bedroom homes to the local area of Derby. Conveniently close to Derby’s city centre, with easy access to Mickleover and Allestree, this area offers numerous primary and secondary schools. The surrounding community includes a variety of residential neighbourhood, parks, and essential local amenities. Plot 163 Tenure: Freehold Length of lease: N/A Annual ground rent amount (£): N/A Ground rent review period (year/month): N/A Annual service charge amount (£): 190.00 Service charge review period (year/month): Yearly Council tax band (England, Wales and Scotland): TBC Reservation fee (£): 1000 For more information about the optional extras available in our new homes, please visit the Miller Homes website.
- Impressive and spacious entrance hallway
- Open plan kitchen, dining and family room with french doors to the rear garden
- Separate laundry room
- Great sized formal lounge allowing for lots of natural light
- Useful study
- Downstairs WC
- Principal bedroom suite with dressing area and en suite
- Spacious family bathroom with separate shower
- 10 year NHBC build warranty
- Double Garage
- Council Tax: Please confirm the council tax band with Miller Homes
- Tenure: Please confirm if this is a freehold or leasehold property with Miller Homes































