4 bedroom semi detached house
The Walnut is a four bedroom three storey home, providing plenty of space for flexible family living. On the first floor, you’ll find an open plan kitchen/ family dining room, with plenty of space for a sociable seating area. This open plan layout means that you can keep a watchful eye on homework duties, while catching up over a cuppa with friends and family.
A set of French doors lead to the garden from the kitchen. Open plan living makes family time easy, while the separate lounge is a great space for when you need some relaxing quiet time too.
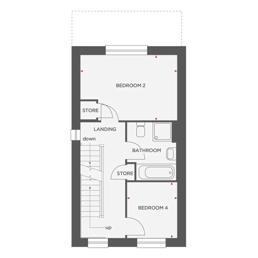
The first floor is home to the second bedroom, you’ll also find a bathroom with separate shower as well as a bedroom, which is a brilliant option for when you have guests.
On the top floor, you’ll find a master bedroom, which comes with a private en suite shower room. If you’re looking to work from home, one of the bedrooms could comfortably double up as a home office.
EPC: B rating.
Estimated Completion Date: Sep 26 – Nov 26
Total Internal Area: 105 sq. m. 1,129 sq. ft.
- NO STAMP DUTY TO PAY FOR FIRST TIME BUYERS
- 4 bedroom semi-detached home with driveway parking
- South facing rear garden
- 3 floors of flexible living space
- Open-plan kitchen/dining/family area
- Separate lounge
- En-suite from master bedroom
- French doors to rear garden
- EV charging point
- Council Tax: Please confirm the council tax band with Wain Homes
- Tenure: Please confirm if this is a freehold or leasehold property with Wain Homes























