2 bedroom house
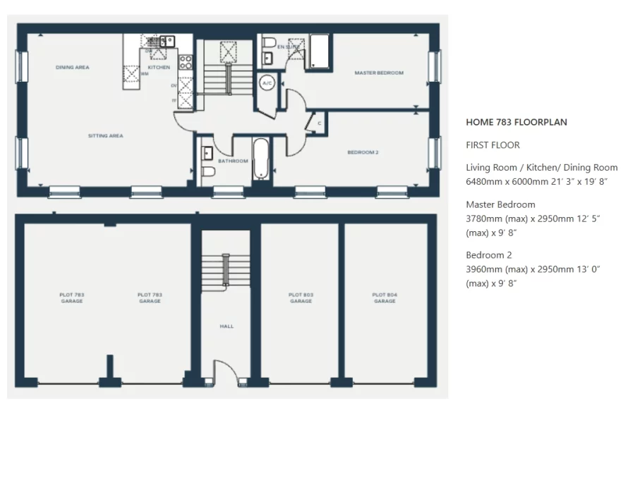
Home 783 is a beautifully designed two-bedroom detached coach house situated in the sought-after Buttervilla area of Poundbury, Dorchester. Offering a unique layout with a spacious double garage beneath, this home combines practicality with the timeless architectural character that defines Poundbury.
Accessed via a private entrance, the accommodation above the garage is thoughtfully arranged to maximise space and natural light. The open-plan living and dining area creates a welcoming setting for relaxing or entertaining, while the well-appointed kitchen is designed for both style and functionality.
The property features two comfortable bedrooms, ideal for homeowners, guests, or a home office setup, alongside a modern bathroom finished to a high standard.
Located within Buttervilla, residents benefit from Poundbury’s distinctive community atmosphere, with local shops, cafés, green spaces, and scenic walks all within easy reach. Dorchester town centre is also nearby, offering a wider range of amenities and excellent transport connections.
Home 783 presents a wonderful opportunity to enjoy contemporary living within one of Dorset’s most distinctive and thoughtfully planned neighbourhoods.












