3 bedroom house
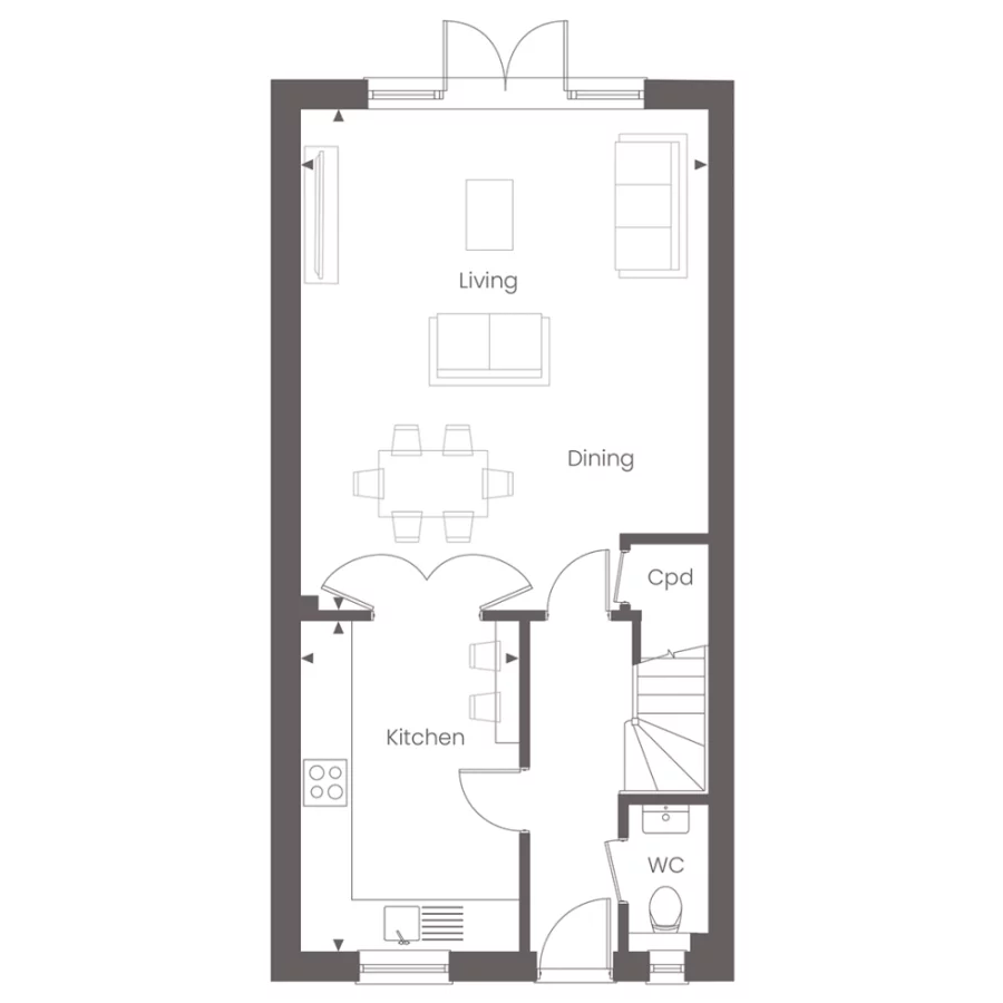
Set over three floors, this three bedroom home offers plenty of contemporary charm. The ground floor has a spacious living/dining room and a stylish, separate kitchen with integrated appliances. This floor also has a cloakroom. The first floor features two spacious double bedrooms, both benefitting from fitted wardrobes. Bedroom one has the added luxury of an en-suite. A secluded study, ideal for homeworking, completes this floor. The second floor is home to the impressive bedroom two which include large, fitted wardrobes and a sleek en-suite. This home benefits from ample storage and a separate driveway leading to two parking spaces.

















