3 bedroom house
Three bedroom semi-detached home with carport and parking.
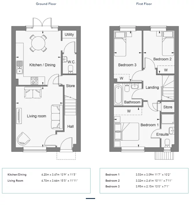
This charming three bedroom semi-detached home with carport and allocated parking features a living room at the front with a kitchen-dining room at the rear, from which French doors provide access to the garden.
There is also a utility space, W.C. and an under stairs storage cupboard.
Upstairs, bedroom one has its own ensuite shower room. There are two single bedrooms and a stylish family bathroom, along with additional storage in bedroom one.
Price and details correct at time of distribution. Images shown may be from another Dandara development and are for illustrative purposes only. Dimensions and details may vary and are subject to change.
*Homes shown: Plots 2 & 99. Homes handed: Plots 3 & 98
*Mover’s Package up to a maximum of £10,000. Package includes a contribution towards removal fees, Stamp Duty and cashback. Paid as a lump sum. Please speak to a Sales Consultant for plot specific offers. Available when reserved by 29th February 2024. Not available in conjunction with any other offer. Dandara reserve the right to withdraw this offer at any time.

















