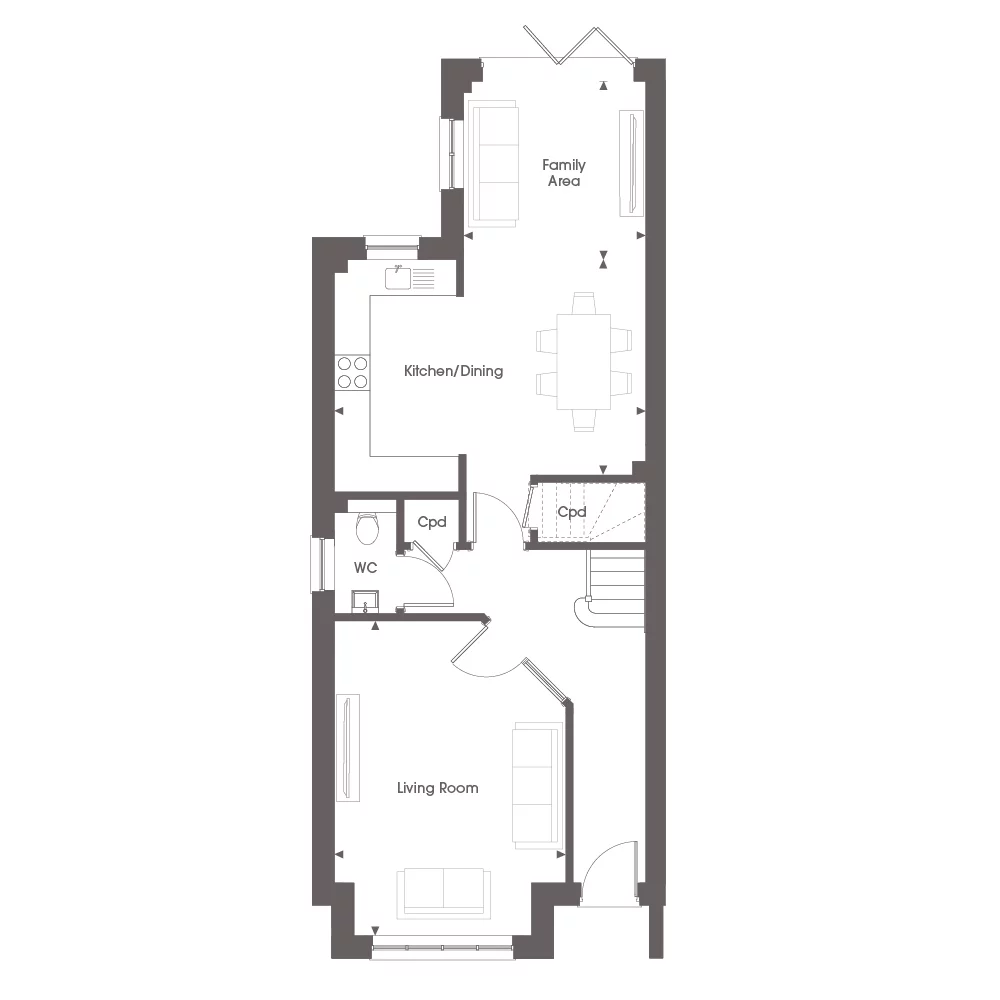
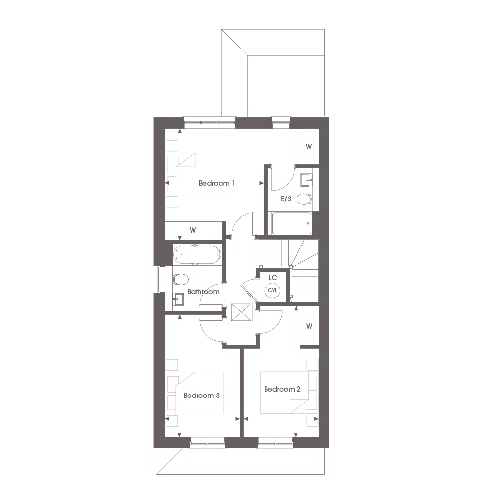
3 bedroom semi detached house
This three-bedroom house features a bright, open-plan ground floor with a kitchen/dining area and a separate family space that opens onto a picturesque garden through bi-fold doors. A separate living room provides an ideal space for relaxing or entertaining friends and family. Upstairs includes three spacious double bedrooms, with bedrooms one and two benefitting from fitted wardrobes. Bedroom one also enjoys the added luxury of an en-suite. A second bathroom and a linen cupboard complete this level. Additional loft space with ladder access offers even more storage. Outside, the property includes a driveway with two parking spaces, along with a patio and lawned garden.
















