2 bedroom apartment
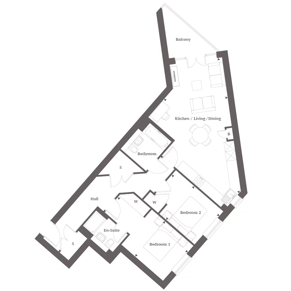
This elegant two-bedroom apartment boasts a spacious open-plan kitchen/living/dining area, ideal for contemporary living. The kitchen features high-quality integrated appliances, and the living area includes bi-fold doors that open onto a private balcony with stunning views of the River Medway. The master bedroom comes with fitted wardrobes and a luxurious en-suite, while the second bedroom is a generous double with ample storage. A sleek family bathroom and additional storage space complete this stylish home. Residents enjoy secure underground parking and access to a communal cycle store.

















