5 bedroom detached house
Ideal for large families, this 5-bedroom home offers plenty of space across two floors, including a roomy master dressing area. With views over green space, two parking spots and a detached garage, it’s made for comfortable, everyday living.
Key features:
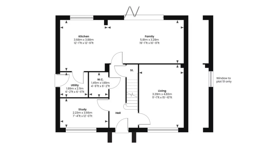
3-storey home
Two reception rooms plus large kitchen and family room
Separate utility room off the kitchen with side access door
Downstairs WC
Spacious dressing area to master bedroom, and en suite
En suite to bedroom 2
Five bedrooms set across two floors
Detached garage plus two parking spaces













