4 bedroom detached house
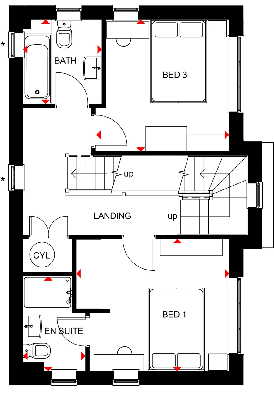
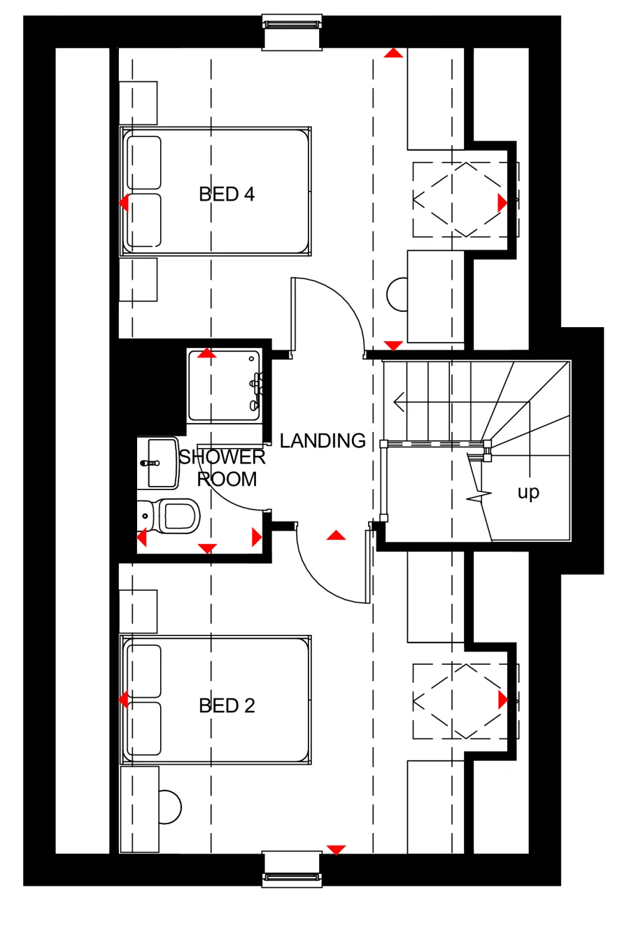
The Hesketh features an open-plan kitchen diner with French doors onto the garden. While the lounge offers a retreat to relax into in the evenings. Upstairs are two double bedrooms, the main with en-suite. Plus a separate bathroom. On the top floor are two more double bedrooms, as well as a shower room.
Property Features:
- Show home on the development
- West facing garden
- Solar panels + EV charging pod
- Detached 4 double bedroom home
- Garage & 2 car driveway
- Open-plan kitchen diner & French doors
- Main bedroom with en-suite
- Two top floor double bedrooms
- Council Tax: Please confirm the council tax band with Barratt Homes
- Tenure: Please confirm if this is a freehold or leasehold property with Barratt Homes
Details added: 12/12/2025
Are we missing any purchase information? Click here to contact the developer






















