New homes in Swindon

2 Qty-bedrooms
£291,995

Wichel Fields @ Wichelstowe, Swindon, SN1 7BX

Spinner
Spinner

Property Details Green-arrow

Hbf 5 stars

2 bedroom terraced house

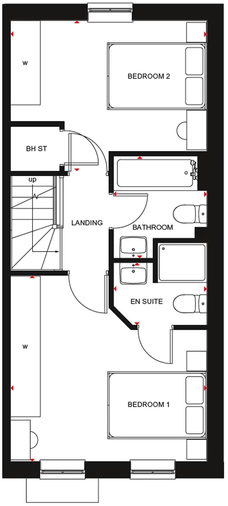
Photovoltaic SOLAR PANELS included. Plot 24 | The Aspen | Wichel Fields @ Wichelstowe, Swindon | Barratt Homes. This home has an open plan living area with a modern kitchen, a comfortable lounge and French doors to the garden. Upstairs you’ll find an en suite main bedroom, a further double bedroom and a family bathroom. This home comes with an electric car charging point and two parking spaces. PEACE OF MIND WHEN BUYING NEW: ENERGY SAVING technologies included, meaning you could enjoy lower bills. COMPREHENSIVE WARRANTY as standard for added reassurance. Need help with your mortgage? We can put you in touch with a New Build MORTGAGE BROKER.

Property Features:
Details added: 11/10/2025
Are we missing any purchase information? Click here to contact the developer

Floorplans Green-arrow

Floorplan:

Floorplan 900 3484986 1760148080

Floorplan:

Floorplan 900 3484991 1760148080

Map & Street view Green-arrow

Development Info Green-arrow

Hbf 5 stars

Wichel Fields @ Wichelstowe

Mill Lane
Swindon
SN1 7BX

View Full development

Set in 200 acres of open space, Wichel Fields @ Wichelstowe is a development of 1 & 2 bedroom apartments and 2, 3 & 4 bedroom homes. On your doorstep you will find Hall & Woodhouse, a lovely bar and restaurant, as well as a Waitrose supermarket. Swindon train station is just 2 miles away, where you could find yourself in central London within 57 minutes on the fast electric railway.

Details added: 19/02/2025
Are we missing any purchase information? Click here to contact the developer

Mortgage Calculator Green-arrow


Disclaimer: The information contained in this site is for general guidance on matters of interest only and New Homes Place Limited holds no warranty for the accuracy of any development or property description or any linked or associated information. Computer generated images and photography are indicative and are intended for illustrative purposes only. They may not represent the actual furnishing and finishes of a property or development.
Spinner-transparent-turq