4 bedroom detached house
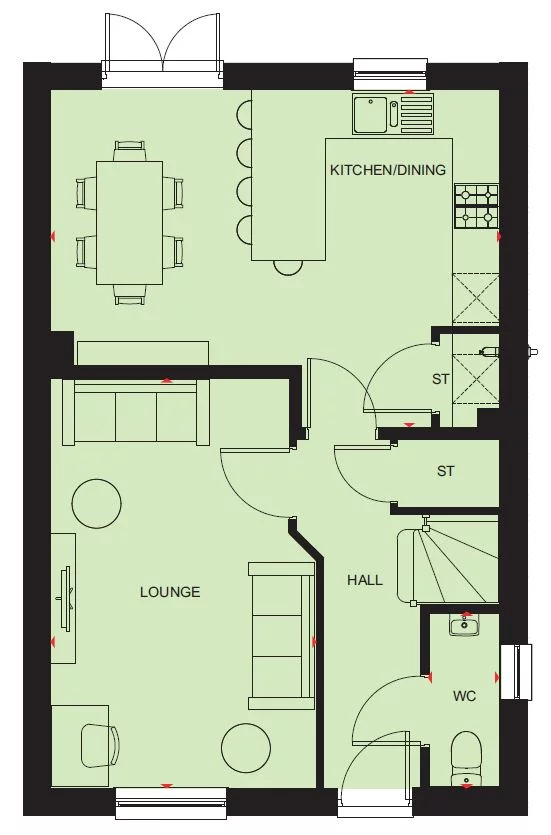
UPGRADED KITCHEN & FLOORING INCLUDED |Garage & driveway | With electric car charging point This 4 bedroom home includes a spacious open plan kitchen with French doors to the garden. A bright and airy lounge, cloakroom and extra storage space complete the ground floor. Upstairs you’ll find an en suite main bedroom, a second double bedroom, 2 single bedrooms and a family bathroom.
- Upgraded kitchen & flooring included
- Garage & driveway
- With electric car charging point
- Relax in your separate lounge
- Social open plan kitchen & dining room
- With French doors opening to your garden
- Four bedrooms - two doubles and two singles
- En suite to main bedroom
- Council Tax: Please confirm the council tax band with Barratt Homes
- Tenure: Please confirm if this is a freehold or leasehold property with Barratt Homes





















