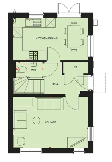
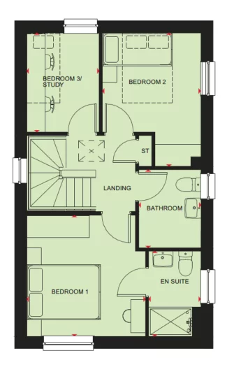
3 bedroom detached house
DRIVEWAY WITH ELECTRIC CAR CHARGING POINT | RELAX IN YOUR SEPARATE LOUNGE A spacious 3 bedroom home, the Moresby features a dual-aspect lounge, allowing lots of natural light to fill the room. The open-plan kitchen with dining space includes French doors that lead out to the rear garden and provides a great space for entertaining by allowing a seamless flow between indoors and out. The 3 bedrooms each offer space for wardrobes, ensuring everyone has a place for their belongings which helps with clutter-free living. The main bedroom features an en-suite and there is a family bathroom.




















