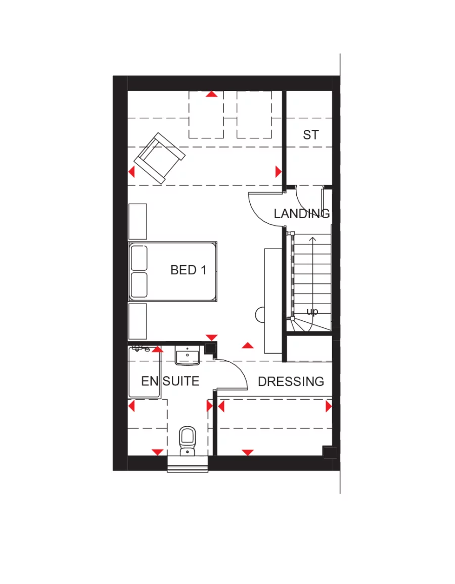
4 bedroom end terraced house
105% PART EXCHANGE, GET 5% OVER MARKET VALUE. Your OPEN-PLAN LIVING/DINING ROOM opens to the garden through FRENCH DOORS making this a great space for relaxing and entertaining. For those busy mornings, the kitchen has room for a handy BREAKFAST AREA. On the first floor are two double bedrooms, the family bathroom and a single bedroom. Your spacious main bedroom with DRESSING AREA and EN SUITE can be found on the top floor.
Property Features:
- Move in this summer
- 105% Part Exchange available
- Get 5% over market value
- West facing garden
- Three-storey home with single garage
- French doors to rear garden
- Top floor dedicated to bedroom 1
- Main bedroom with en suite
- Dressing area
- Council Tax: Please confirm the council tax band with Barratt Homes
- Tenure: Please confirm if this is a freehold or leasehold property with Barratt Homes
Details added: 03/10/2025
Are we missing any purchase information? Click here to contact the developer
























