4 bedroom detached house
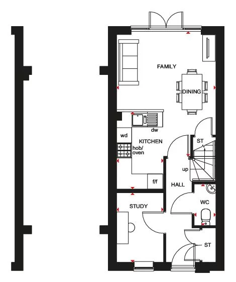
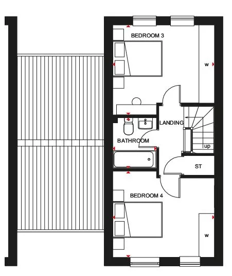
30,000 DEPOSIT CONTRIBUTION* – SOLAR PANELS – EV CHARGING POD – UPGRADED KITCHEN – FLOORING INCLUDED – THE GIRTON – Enter this 4 bed home & you will find an open-plan kitchen family/dining area with French doors onto the garden. At the front of the home is a study, the ideal place to work from home. On the first floor are bedrooms 1 & 2, both with en-suites. There is also another living area to relax in the evenings. On the top floor is a 3rd double bedroom and a single bedroom.
- Link-detached 4 bedroom home
- 30,000 Deposit Contribution
- Solar panels & EV charging pod
- Carport & driveway for 2 cars
- Upgraded kitchen & integrated appliances
- Flooring included
- Bedroom 1 & 2 with en-suites
- 1,383 sqft
- Council Tax: Please confirm the council tax band with Barratt Homes
- Tenure: Please confirm if this is a freehold or leasehold property with Barratt Homes






















