3 bedroom detached house
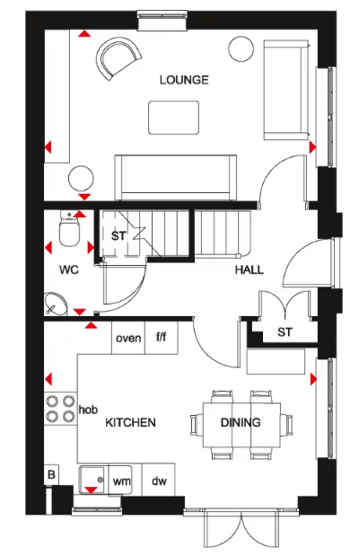
SHOW HOME FOR SALE – UPGRADES INCLUDED | SOUTH-FACING GARDEN | The Ennerdale is a three bedroom detached home. The hallway benefits from a cloakroom and useful storage area. Large windows and French doors light up the open-plan kitchen/diner and spacious lounge. Upstairs wake up in the main bedroom with en suite. A double bedroom, single bedroom/home office and a modern family bathroom complete the first floor. Detached garage + private driveway parking for 2 cars Plot 87 I Ennerdale I Romans’ Quarter Romans’ Quarter in the Vale of Belvoir is within walking distance of Bingham. There is plenty of GREEN OPEN SPACE and 2 PLAY PARKS on the development. You’ll be close to great AMENITIES, OFSTED ‘OUTSTANDING’ schools, Bingham railway station, the A52 and A46. Nottingham city centre is just 30 minutes away where you can enjoy bars, restaurants, crazy golf and the cinema.
- Show Home for Sale
- All upgrades are included
- Open-plan kitchen with dining area
- South-facing garden
- Spacious lounge
- En suite to the main bedroom
- Further double bedroom
- Single bedroom or home office
- Detached garage
- Private driveway parking for 2 cars
- Council Tax: Please confirm the council tax band with Barratt Homes
- Tenure: Please confirm if this is a freehold or leasehold property with Barratt Homes





















