New homes in Stanley, Perthshire

4 Qty-bedrooms
From £291,000

Furness, Millside Park , Perthshire, PH1 4LZ

Spinner
Spinner

Property Details Green-arrow

4 bedroom detached house

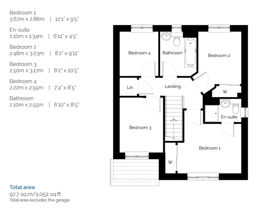
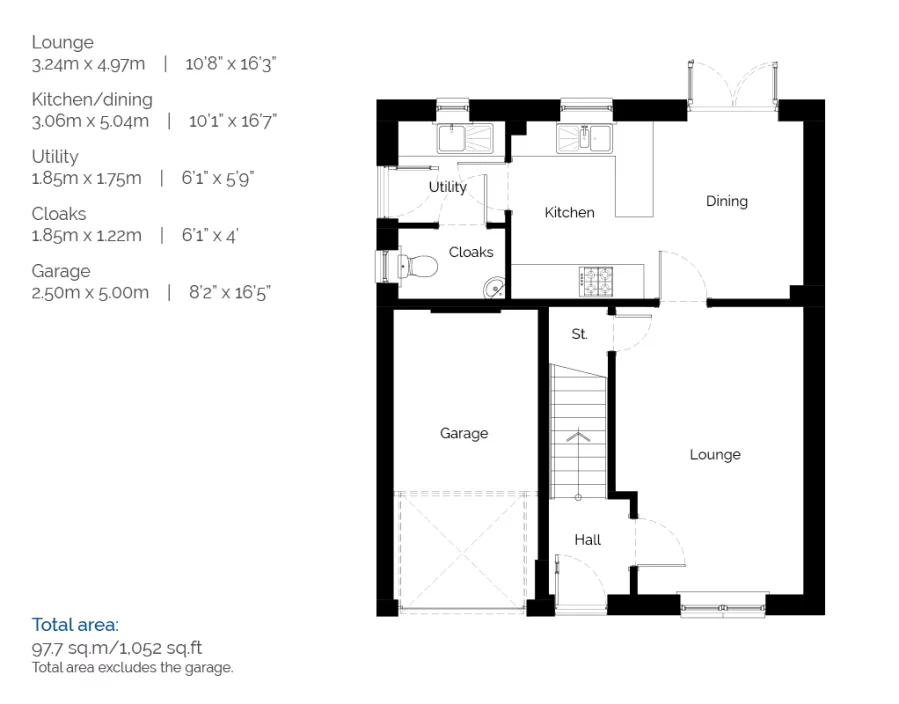
The Furness offers four bedrooms with practical and comfortable living space. The ground floor includes a separate lounge, a kitchen/dining room with French doors to the garden, and a downstairs WC. Upstairs features a main bathroom and a master bedroom with an en-suite and built-in wardrobe. The property also benefits from a private garden and private parking.

Details added: 22/10/2025
Are we missing any purchase information? Click here to contact the developer

Floorplans Green-arrow

Floorplan:

Floorplan 900 3492531 1761128251

Floorplan:

Floorplan 900 3492536 1761128254

Map & Street view Green-arrow

Development Info Green-arrow

Millside Park

Millside Park
Stanley
Perthshire
PH1 4LZ

View Full development

Millside Park by Ogilvie Homes is a stunning Perthshire development of two-, three- and four-bedroom homes in the village of Stanley, on the north side of the River Tay.

An idyllic lifestyle awaits, with a treasure trove of activities, nature and local history. As well as nods to the village’s roots in the Industrial Revolution, Stanley offers the timeless allure of beautiful countryside, with miles of footpaths and hiking and cycle routes winding their way across the landscape.

A short drive north of the once-capital of Scotland, Perth, you can also reach the lively city of Dundee and the picturesque seaside town of St Andrews in under an hour. Indeed, Millside Park is the perfect gateway to both the lowlands and highlands, with Edinburgh an hour to the south and stunning mountain resorts like Aberfeldy and Aviemore in the Cairngorms to the north.

Details added: 03/11/2024
Are we missing any purchase information? Click here to contact the developer

Mortgage Calculator Green-arrow


Disclaimer: The information contained in this site is for general guidance on matters of interest only and New Homes Place Limited holds no warranty for the accuracy of any development or property description or any linked or associated information. Computer generated images and photography are indicative and are intended for illustrative purposes only. They may not represent the actual furnishing and finishes of a property or development.
Spinner-transparent-turq