3 bedroom house
BEAUTIFULLY CRAFTED THREE-BEDROOM DORMER BUNGALOW
Three-bedroom home that blend flexibility with contemporary comfort
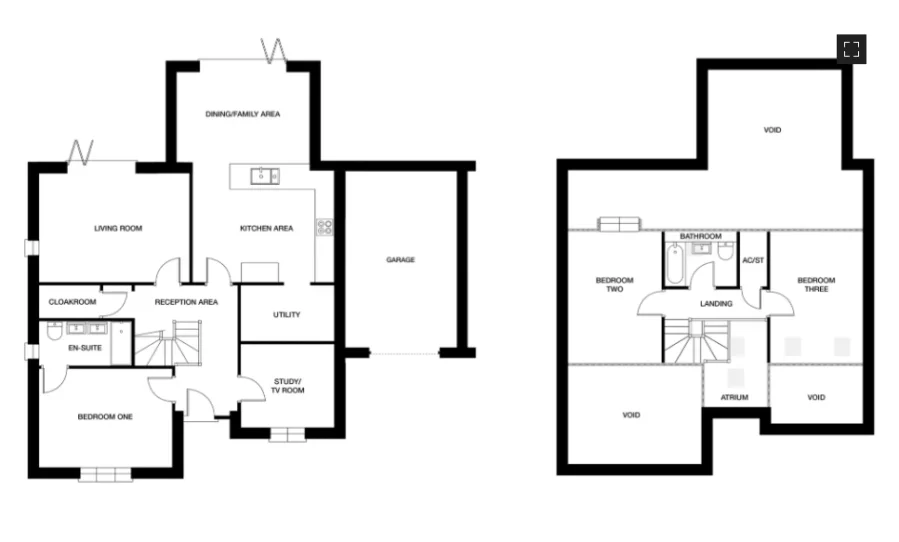
On the ground floor of this dormer bungalow, a spacious kitchen flows seamlessly into an open-plan dining and family area, ideal for everyday living and entertaining. Bifold doors from both the dining/family area and the separate living room invite natural light in and open out onto the rear garden, creating a bright and welcoming space. A handy utility room, cloakroom, generous master bedroom with en-suite and a versatile study or TV room completes the downstairs layout. Upstairs, the two additional bedrooms share a stylish family bathroom – making these homes perfect for growing families or those seeking versatile space.
This home includes the following:
Solar panels to roof
EV charging point
En-suite to master bedroom
Enclosed rear garden
Detached single garage
Anticipated EPC rating B
10 year LABC structural warranty
2 year builders warranty with Walton Homes
Anticipated Completion: Summer 2026
Tenure Type: Freehold
Service charge: N/A
Estate charge:
Council Tax band: TBC
Parking: Single garage













