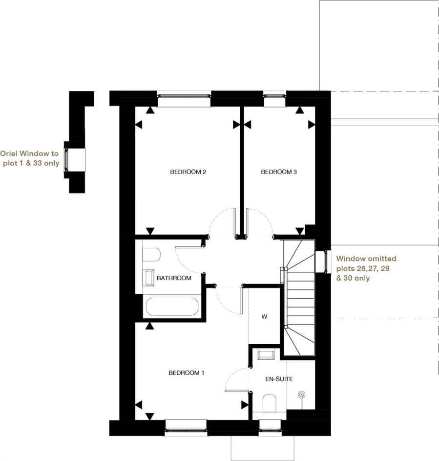
3 bedroom semi detached house
Semi-detached
3 bedrooms
Living/dining room
SMEG Oven, Hob and Hood
Integrated fridge/freezer, dishwasher and washer/dryer
Amtico style flooring to wet rooms and carpets to all other areas
En-suite to bedroom 1
Garage
Landscaped front garden with turf to rear garden
Electric vehicle charging point
Ultra-fast fibre broadband available
Property Features:
Details added: 12/09/2025
Are we missing any purchase information? Click here to contact the developer













