New homes in East Lothian

3 Qty-bedrooms
From £358,500

Barnes, Longniddry Village Phase 2, East Lothian, B6363

Spinner
Spinner

Property Details Green-arrow

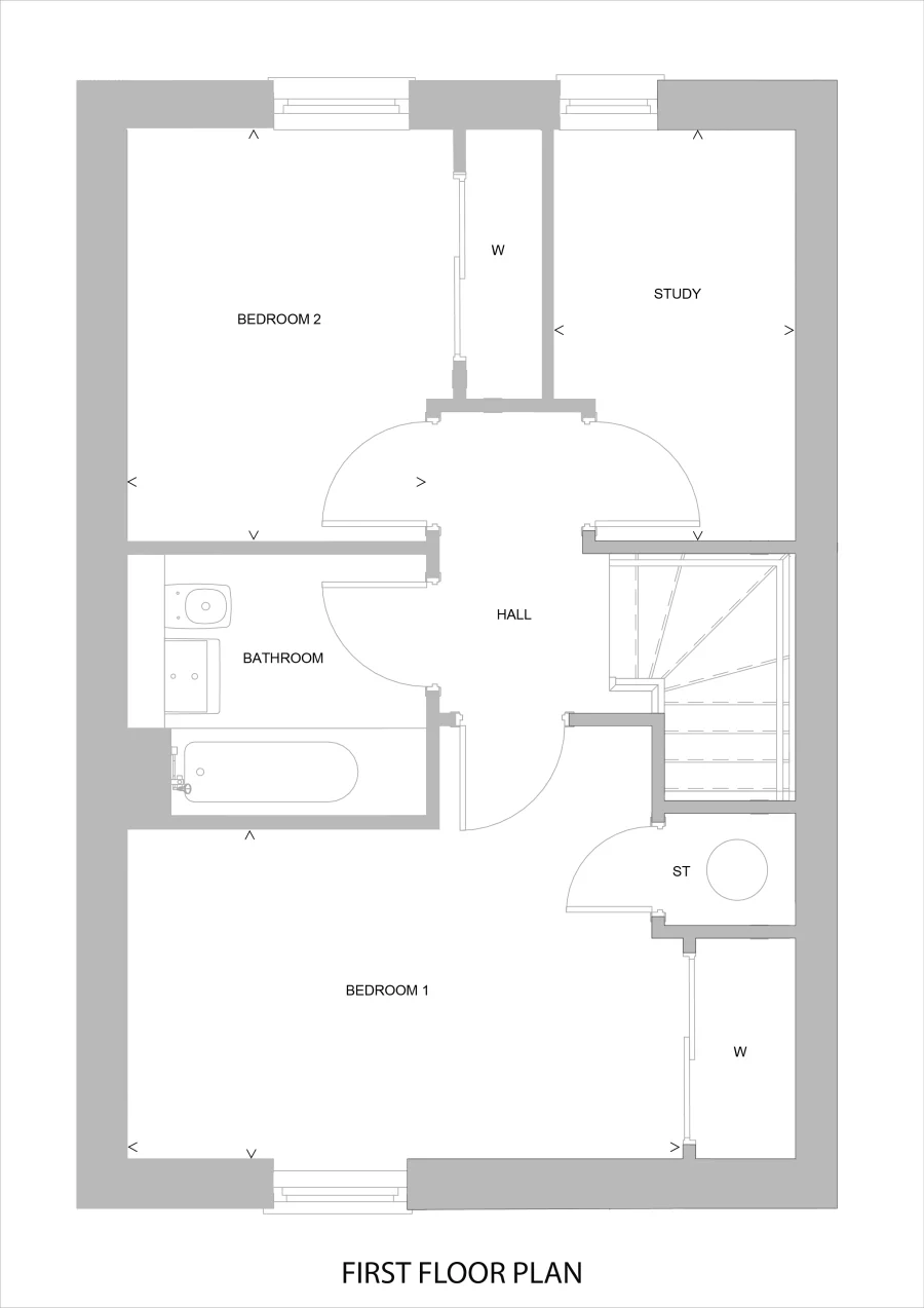
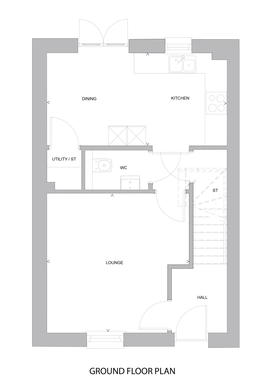
3 bedroom terraced house


This spacious 3 bed home features a generous living room on the ground floor which leads to the kitchen and dining area with a utility/store cupboard and access to the rear garden. Upstairs you will find two large double bedrooms and a single bedroom /study and a well considered family bathroom. 

Details added: 23/06/2024
Are we missing any purchase information? Click here to contact the developer

Floorplans Green-arrow

Floorplan:

Floorplan 900 2985386 1719140166

Floorplan:

Floorplan 900 2985391 1719140166

Map & Street view Green-arrow

Development Info Green-arrow

Longniddry Village Phase 2

Longniddry
East Lothian
B6363

View Full development

About Longniddry Village Phase 2

New Homes Released for Summer 2025 Completion

New homes have just been released at our multi-award-winning Longniddry Village development in East Lothian. Check out what’s available to reserve now for a summer 2025 completion:

  • 3 & 4 bedroom houses from £380,000
  • 1 & 2 bedroom apartments from £232,500

Book an appointment today to find out more.

Traditionally Designed New Homes in East Lothian

Our award-winning Longniddry Village development offers traditionally designed and carefully crafted new homes in the heart of beautiful East Lothian.

Phase 2: Wide Range of Property Types Available

Phase 2 offers a range of two, three, four and five-bedroom homes, plus 1 & 2 bedroom coach houses and apartments, each featuring charming local architecture, impressive detailing and a superb specification that includes:

  • Beautiful German kitchens, top of the range integrated appliances from Siemens and Hansgrohe taps
  • Sleek sanitaryware from the Vitra M-Line range, complemented by Vado brassware
  • Vanity furniture from Ambiance Bain
  • Designer ceramic tiling
  • Solid core Dordogne style pass doors in white
  • Timber sash & case windows
  • Impressive ceiling heights
  • Extensive range of optional upgrades and extras to personalise your home

A Vibrant Community in the Heart of Longniddry

Longniddry Village realises the aspirations of the rural landowner to create a traditional collection of new homes like no other, one that echoes East Lothian life, whilst creating a vibrant extension to Longniddry’s thriving village community.

When complete, the development will include a number of features for residents to enjoy,

Details added: 15/12/2020
Are we missing any purchase information? Click here to contact the developer

Mortgage Calculator Green-arrow


Disclaimer: The information contained in this site is for general guidance on matters of interest only and New Homes Place Limited holds no warranty for the accuracy of any development or property description or any linked or associated information. Computer generated images and photography are indicative and are intended for illustrative purposes only. They may not represent the actual furnishing and finishes of a property or development.
Spinner-transparent-turq