Churchdown
Churchdown
GL3 1AE
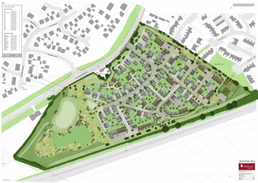
Our new homes in Churchdown feature a range of 1 to 5 bedroom zero carbon, energy efficient homes. A generous proportion of the development is planned as public open space, with play areas, wildflower meadow and woodland planting.
Construction work is underway and our marketing suite and showhome is due to open later in 2025, with the first homes available for occupation shortly after.
What makes our homes zero carbon and extremely energy efficient?
Our zero carbon homes create as much prime energy as they need, thanks to their use of highly efficient air source heat pumps, extensive solar panels providing renewable energy and high levels of insulation. Prime energy* is the regulated energy used to provide lighting, heating & hot water in the home. This is assessed by a standard procedure assuming a typical family lifestyle as indicated in the home’s Energy Performance Certificate.
*Prime energy is the regulated energy used to provide lighting, heating and hot water in the home assessed by a standard procedure assuming a typical family lifestyle as indicated in the home’s Energy Performance Certificate.

























