New homes in Mapperley

3 Qty-bedrooms
From £397,000

Chapman, Mapperley Meadows, NG3 5RW

Spinner
Spinner

Property Details Green-arrow

3 bedroom detached house

£10,000 to spend your way when you reserve your new home*

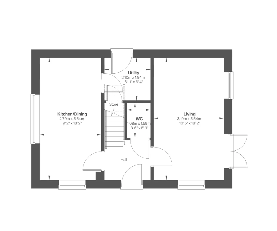
Spacious open-plan kitchen and dining area
Utility space for additional storage with side door access
Separate living room with French doors onto rear garden
Generous principal bedroom with en suite and fitted wardrobes
Well-proportioned second and third bedrooms
EV charger and solar PV panels

Details added: 10/12/2025
Are we missing any purchase information? Click here to contact the developer

Floorplans Green-arrow

Floorplan:

Floorplan 900 3516431 1765363177

Floorplan:

Floorplan 900 3516436 1765363187

Map & Street view Green-arrow

Development Info Green-arrow

Mapperley Meadows

Mapperley Plains
Mapperley
NG3 5RW

View Full development

Welcome to Mapperley Meadows
TO CELEBRATE OUR SHOWHOME LAUNCH

Receive £10,000 to spend your way, when you reserve your new home

Ease into a more relaxed pace of life at Mapperley Meadows, this new neighbourhood of 57 beautifully designed three, four, and five-bedroom homes is perfectly positioned so you can enjoy all the benefits of a living on the edge of the countryside with the added comfort of knowing that Nottingham is only a short drive away.

Whether you’re a growing family, working from home or looking to create a dedicated space for your hobbies, our homes at Mapperley Meadows offer all the flexibility you need to make it happen. Spacious, light-filled, open-plan living areas provide the freedom to create the perfect space for entertaining and family gatherings. While our versatile layouts provide rooms that can be turned into everything from home offices to guest bedrooms.

Details added: 26/10/2025
Are we missing any purchase information? Click here to contact the developer

Mortgage Calculator Green-arrow


Disclaimer: The information contained in this site is for general guidance on matters of interest only and New Homes Place Limited holds no warranty for the accuracy of any development or property description or any linked or associated information. Computer generated images and photography are indicative and are intended for illustrative purposes only. They may not represent the actual furnishing and finishes of a property or development.
Spinner-transparent-turq