Brook View at Pickford Gate
Allesley
Coventry
CV5 9AL
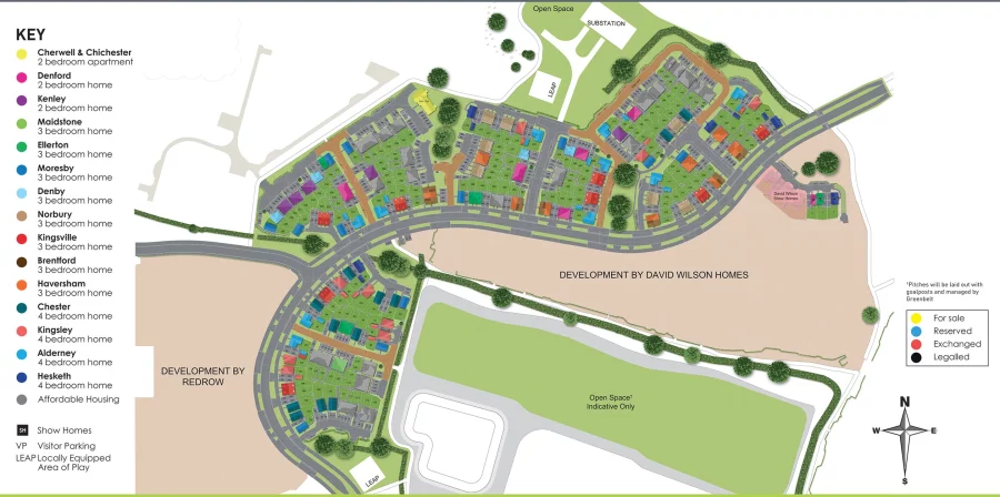
Host to a fine collection of 2,3 & 4 bedroom homes, Brook View at Pickford Gate brings new residents closer to Coventry’s vibrant scene whilst enjoying a peaceful retreat away from the hustle and bustle of a busy city. Essential amenities are in proximity, including schools, shops and restaurants, whilst having excellent commuter opportunities available via the nearby A45, M42 and M6. What3words location – loose.exam.major































