4 bedroom detached house
The Cherrywood OFFERS AVAILABLE Open plan kitchen/dining room, Separate laundry room, Principal bedroom with en-suite shower room, Walk-through dressing area in principal bedroom Beautifully designed to combine convenience with flexibility, the family kitchen, with its feature french doors enhancing the dining area, provides a delightful, informal counterpoint to the stylish lounge. Upstairs, a gallery landing leads to four bedrooms, one of them en-suite with a dedicated dressing area. Bramcote Hills Rise is our latest development coming to Bramcote, Nottingham. Designed with both style and sustainability in mind, these elegant 2–5 bedroom homes bring modern convenience to the heart of one of Nottingham’s most desirable suburbs. Plot 418 Tenure: Freehold Length of lease: N/A Annual ground rent amount (£): N/A Ground rent review period (year/month): N/A Annual service charge amount (£): 167.00 Service charge review period (year/month): Yearly Council tax band (England, Wales and Scotland): TBC Reservation fee (£): 1000 For more information about the optional extras available in our new homes, please visit the Miller Homes website. Plot 419 Tenure: Freehold Length of lease: N/A Annual ground rent amount (£): N/A Ground rent review period (year/month): N/A Annual service charge amount (£): 167.00 Service charge review period (year/month): Yearly Council tax band (England, Wales and Scotland): TBC Reservation fee (£): 1000 For more information about the optional extras available in our new homes, please visit the Miller Homes website. Plot 440 Tenure: Freehold Length of lease: N/A Annual ground rent amount (£): N/A Ground rent review period (year/month): N/A Annual service charge amount (£): 167.00 Service charge review period (year/month): Yearly Council tax band (England, Wales and Scotland): TBC Reservation fee (£): 1000 For more information about the optional extras available in our new homes, please visit the Miller Homes website.
- Open plan kitchen/dining room with french doors to garden
- Spacious lounge
- Separate laundry room
- Downstairs WC
- Handy storage space
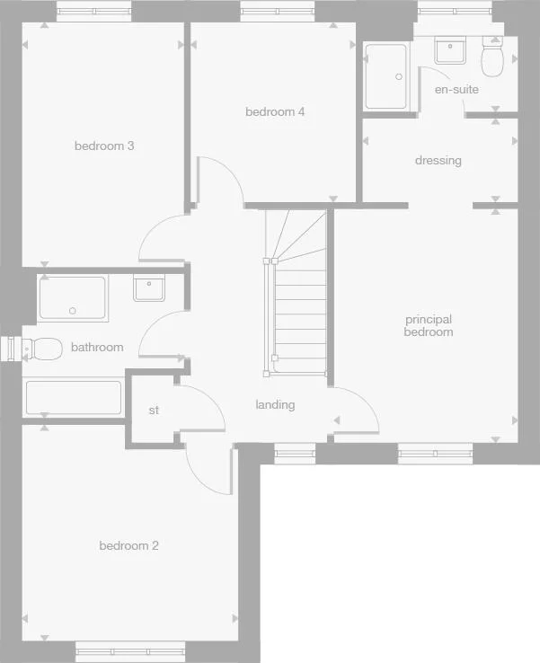
- Principal bedroom with en-suite shower room
- Walk-through dressing area in pricipal bedroom
- Three further good-sized bedrooms
- Flexible space for a home office
- Integral garage & driveway
- Council Tax: Please confirm the council tax band with Miller Homes
- Tenure: Please confirm if this is a freehold or leasehold property with Miller Homes


























