5 bedroom detached house
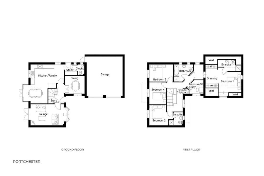
This majestic five bedroom home with double garage is truly delightful. Though grand in design, the Portchester offers classic features and elegant style throughout its spacious layout.
Entering the impressive central hallway, the beautifully appointed lounge is on one side. This elegant room has a feature bay window and French doors leading on to the garden, flooding the room with light. Across the hallway is the modern, spacious kitchen that has been designed to maximise space, ideal for family living and entertaining. A true focal point and hub of the home, the dining area benefits from stylish French doors that open out on the pretty garden, perfect for the warmer summer months. Accommodating busy family life, there is a separate utility and downstairs cloakroom to maximise storage.
The grand galleried landing upstairs leads to four stylish double bedrooms, with bedroom two having en-suite facilities, making it the perfect guest bedroom. The fifth bedroom could also be a study or home office. There is also a modern yet elegant family bathroom with both a bath and a shower. The roomy master bedroom with its deluxe en-suite shower room and glamourous dressing area provides a private retreat in your own home.
- Five double bedroom homes in an executive-style home
- Luxury fitted kitchen with stylish kitchen appliances
- Dining area enjoys access to the rear garden via French doors
- Dual aspect lounge with French doors to rear garden
- Separate space for family dining or a snug
- Master bedroom enjoys a spacious dressing area with fitted wardrobes and private ensuite
- Ensuite to bedroom 2 and family bathroom for remaining bedrooms
- Bedroom 5 can also be used as office for home working
- Block paved driveway leading to a double integral garage
- NHBC Warranty
- Council Tax: Please confirm the council tax band with Harron Homes
- Tenure: Please confirm if this is a freehold or leasehold property with Harron Homes




























