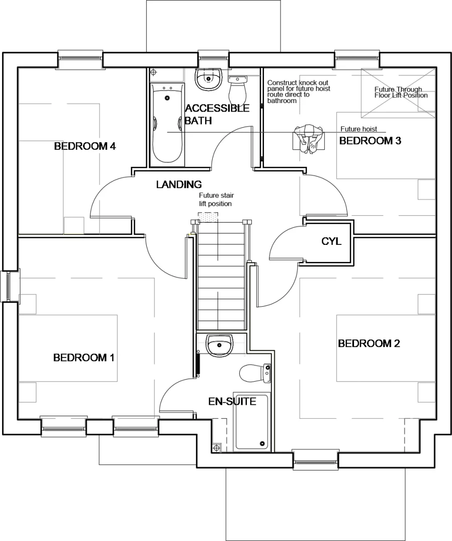
4 bedroom detached house
SOUTH FACING GARDEN – 5% DEPOSIT PAID WORTH 22,750 OR PART EXCHANGE
Property Features:
- Last Cambridge remaining
- Large south facing garden
- 5% Deposit Paid worth 22,750
- OR Part Exchange your home
- Your flooring throughout
- Upgraded kitchen + integrated appliances
- Garage & driveway for at least 2 cars
- Study room ideal for home working
- Main bedroom with en-suite
- Council Tax: Please confirm the council tax band with Barratt Homes
- Tenure: Please confirm if this is a freehold or leasehold property with Barratt Homes
Details added: 20/01/2026
Are we missing any purchase information? Click here to contact the developer























