4 bedroom house
The Wooler – 4 bedroom detached home with garage
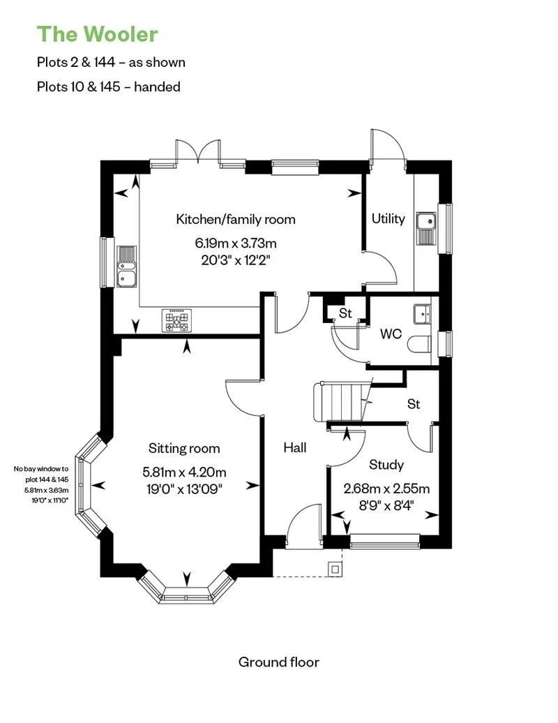
Measuring 1,568 sq. ft
With light, space and luxury, there’s everything you could wish for in this 4 bed family home.
Spend together time in the kitchen/family room. Open the patio doors to take the fun outside. A separate utility with outdoor access is the perfect spot to cast off wet jackets or muddy boots.
The sitting room is a perfectly flexible space. Formal lounge or stylish cinema room, you decide.
Ever considered working from home? The study enjoys the perfect quiet retreat.
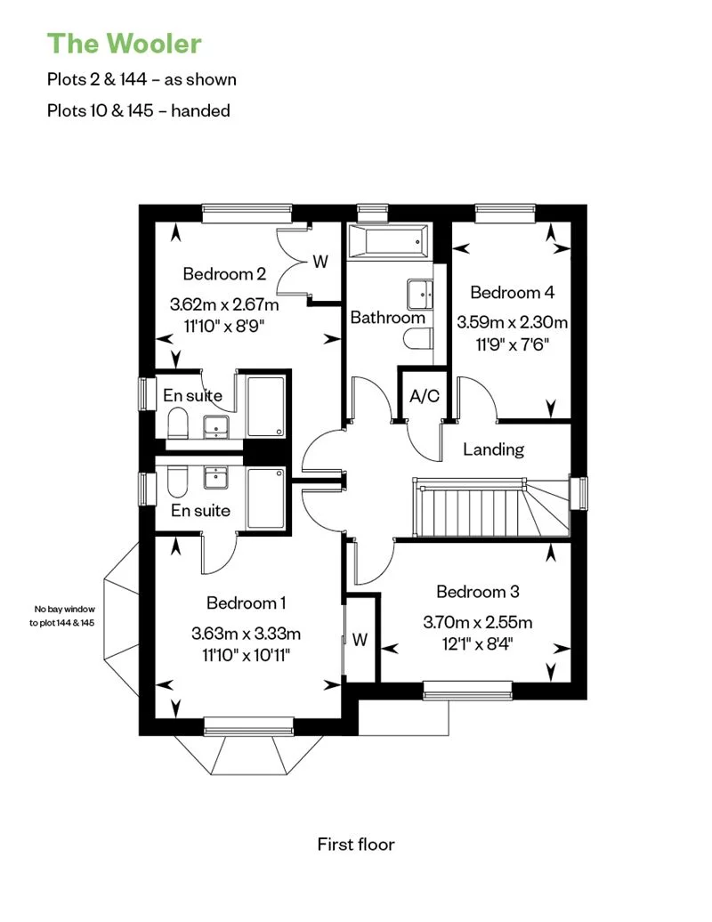
Upstairs, the two larger bedrooms benefit from an en suite and fitted wardrobes. Two further bedrooms and a family bathroom offer plenty of options for growing families.
Reserve now to personalise the interiors of your new home!





























