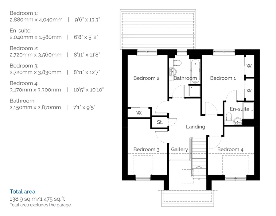
4 bedroom detached house
A magnificent four bedroom detached family home with a single integral garage. There is a large lounge to the front and an open plan kitchen/dining/family area to the rear with French doors leading to the garden and a separate utility room. Upstairs are four large bedrooms with built-in wardrobes to bedrooms 1 & 2 and, an en-suite to the main bedroom, and a family bathroom off the hall.













