New homes in Off Melton Road, Leicestershire

3 Qty-bedrooms
From £399,995

Ashbourne, Waltonbrook, Leicestershire, LE12 5TS

Spinner
Spinner

Property Details Green-arrow

3 bedroom detached house

1,009 sq. ft.
A generous 3-bedroom family home with open-plan kitchen-diner, separate utility and spacious lounge – perfect for busy households. This home also includes French doors to the garden and an en suite to the master bedroom.

Key features:
Open-plan kitchen with dining area
Separate utility room off the kitchen
Spacious living room with French doors to the garden
En suite to the master bedroom
Two car parking spaces

Details added: 02/10/2025
Are we missing any purchase information? Click here to contact the developer

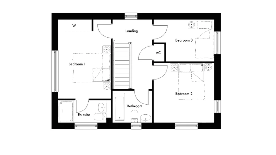
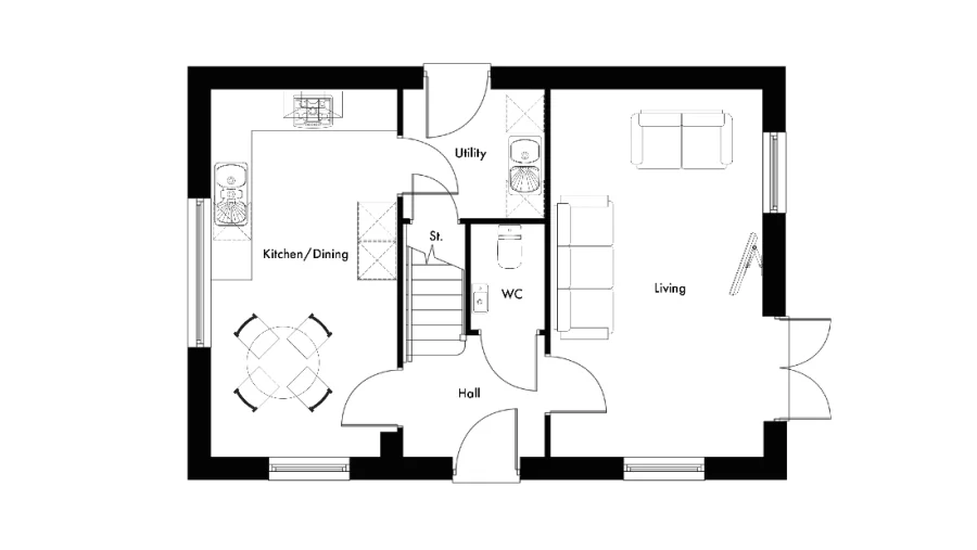
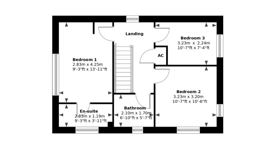
Floorplans Green-arrow

Floorplan:

Floorplan 900 3479806 1759410031

Floorplan:

Floorplan 900 3479811 1759410035

Floorplan:

Floorplan 900 3479816 1759410044

Floorplan:

Floorplan 900 3479821 1759410047

Map & Street view Green-arrow

Development Info Green-arrow

Waltonbrook

Burton on the Wolds - Sowters Lane
Off Melton Road
Leicestershire
LE12 5TS

View Full development

Set against the rolling backdrop of north Leicestershire’s countryside, Waltonbrook is a thoughtfully designed collection of 66 new homes in the peaceful village of Burton on the Wolds. Here, timeless rural charm meets modern-day comfort – creating a place where families of all shapes and sizes can grow, thrive and settle. Life at Waltonbrook means being part of something special – a warm and welcoming village where everything feels close, connected and full of possibility.

What’s here for you
66 beautifully crafted, energy-efficient new homes
Choice of spacious 1, 2, 3, 4 and 5-bedroom properties
Idyllic village setting with scenic walks and green space
Highly rated local primary school
Just 10 minutes from the vibrant town of Loughborough

Details added: 02/10/2025
Are we missing any purchase information? Click here to contact the developer

Mortgage Calculator Green-arrow


Disclaimer: The information contained in this site is for general guidance on matters of interest only and New Homes Place Limited holds no warranty for the accuracy of any development or property description or any linked or associated information. Computer generated images and photography are indicative and are intended for illustrative purposes only. They may not represent the actual furnishing and finishes of a property or development.
Spinner-transparent-turq