4 bedroom detached house
The Arisaig is an elegant four bedroom family home that perfectly combines space, style, and comfort. The bright and inviting lounge, with its stunning bay window, creates a warm and welcoming atmosphere, while the generous open-plan kitchen/dining area with French doors to the rear garden, is perfect for family life and entertaining. A convenient WC completes the ground floor.
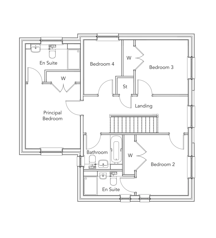
Upstairs, a light filled gallery landing leads to three double bedrooms and a generous single – with bedrooms one and two enjoying their own en suite shower rooms, with bedrooms one, two and three all featuring fitted wardrobes. A family bathroom and plenty of storage throughout complete this charming home, along with an integral garage and monoblock driveway for added convenience.













