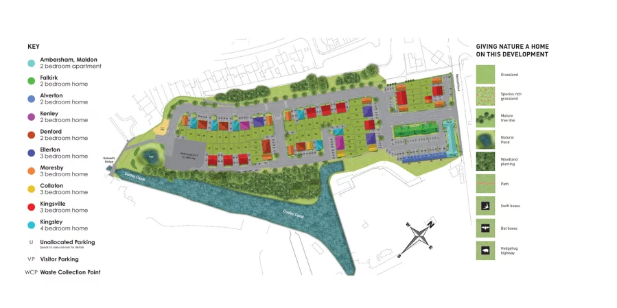
Anvil Place
Netherton
Dudley
DY2 0JZ
Located in the historic and vibrant market town of Dudley, Anvil Place is a new collection of 2, 3 and 4 bedroom homes close to bluebell covered, ancient woodland and a serene reservoir. Only ten miles from Birmingham, the location offers easy access to a range of convenient amenities, leisure and entertainment options. With excellent travel links to neighbouring towns such as West Bromwich, Wolverhampton, Walsall and the wider Midlands.


























