3 bedroom mews
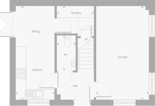
The Carlton is a striking three-bedroom home and the perfect place to start your next chapter. With welcoming light created by the triple-windowed, dual aspect lounge,which is further enhanced by the dual aspect kitchen with its French doors, adding a focal point to the dining area. Upstairs, there is an en-suite principal bedroom, while the further two bedrooms offer the flexibility to be adapted to either a home office space or gym. Plot 93 Tenure: Freehold Length of lease: N/A Annual ground rent amount (£): N/A Ground rent review period (year/month): N/A Annual service charge amount (£): 107.38 Service charge review period (year/month): Yearly Council tax band (England, Wales and Scotland): TBC Reservation fee (£): 500 For more information about the optional extras available in our new homes, please visit the Miller Homes website.
- End terrace home
- Open plan kitchen and dining area
- Dual aspect lounge
- Home office space
- French doors to garden
- Principal bedroom en-suite
- 10-year NHBC warranty
- Miller Homes are rated 5* for customer service
- Use our Assisted Move scheme - ask us for more information
- Enjoy up to 5% Deposit Paid* on selected homes, saving you thousands. * Available on selected homes. Terms and conditions apply.
- Council Tax: Please confirm the council tax band with Miller Homes
- Tenure: Please confirm if this is a freehold or leasehold property with Miller Homes






















