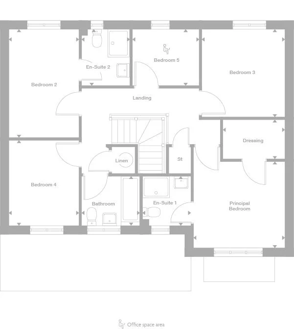
5 bedroom detached house
The Bayford is a superb five-bedroom home, with an open plan kitchen and dining area featuring french doors to the garden, perfect for enjoying alfresco dining in the summer months. The separate lounge is perfect for formal entertaining. Sharing the ground floor is a separate laundry room, while the extended garage is ideal for storing sporting equipment, tools and larger garden furniture. Upstairs, two of the five bedrooms are en-suite, with the principal bedroom also featuring an impressive, dedicated dressing area, while the further three bedrooms offer the flexibility to be adapted to either a home office space or gym. Plot 80 Tenure: Freehold Length of lease: N/A Annual ground rent amount (£): N/A Ground rent review period (year/month): N/A Annual service charge amount (£): 69.00 Service charge review period (year/month): Yearly Council tax band (England, Wales and Scotland): E Reservation fee (£): 500 For more information about the optional extras available in our new homes, please visit the Miller Homes website.
- Open plan kitchen and family dining area
- Separate lounge
- Laundry room
- Handy storage
- Extended garage
- Principal bedroom with en-suite
- Dressing area to principal bedroom
- Bedroom 2 with en-suite
- Flexible home office space
- 10-year NHBC warranty
- Council Tax: Please confirm the council tax band with Miller Homes
- Tenure: Please confirm if this is a freehold or leasehold property with Miller Homes

























