4 bedroom detached house
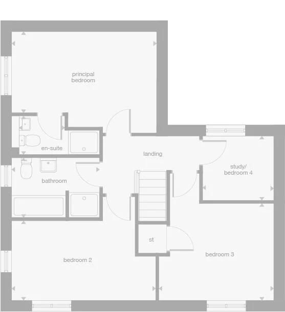
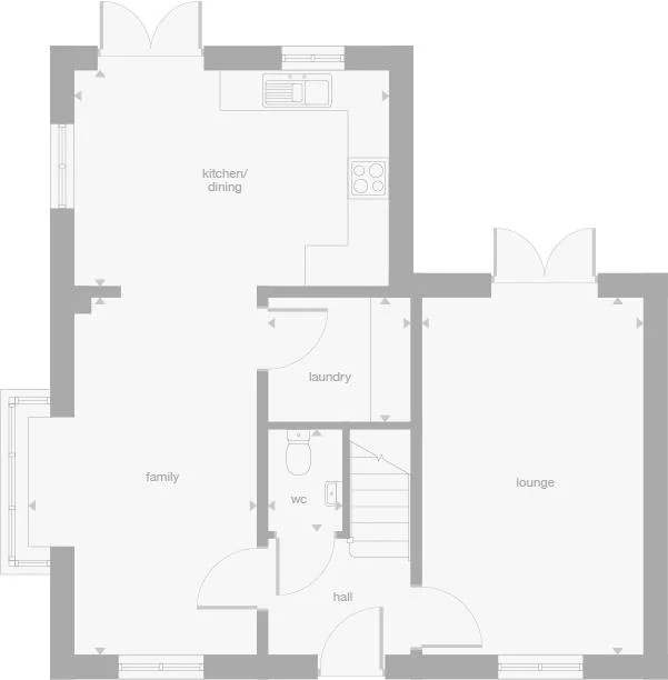
The bay windowed family room adjoins a kitchen dining room with French doors, creating a breath-taking triple aspect space. French doors enhance the dual aspect lounge and a laundry and downstairs WC complete the ground floor layout. Upstairs the principal bedroom is en-suite, another is dual aspect and storage is available in bedroom three. Plot 70 Tenure: Freehold Length of lease: N/A Annual ground rent amount (£): N/A Ground rent review period (year/month): N/A Annual service charge amount (£): 237.86 Service charge review period (year/month): Yearly Council tax band (England, Wales and Scotland): TBC Reservation fee (£): 500 For more information about the optional extras available in our new homes, please visit the Miller Homes website.
- 17ft lounge with French doors to garden
- Open plan dining kitchen with French doors
- Family area adjoining the kitchen with feature bay window
- Laundry room
- Principal bedroom en-suite
- Bedroom 4 ideal study
- Family bathroom with separate bath & shower
- Garage and garden
- Council Tax: Please confirm the council tax band with Miller Homes
- Tenure: Please confirm if this is a freehold or leasehold property with Miller Homes
































