4 bedroom detached house
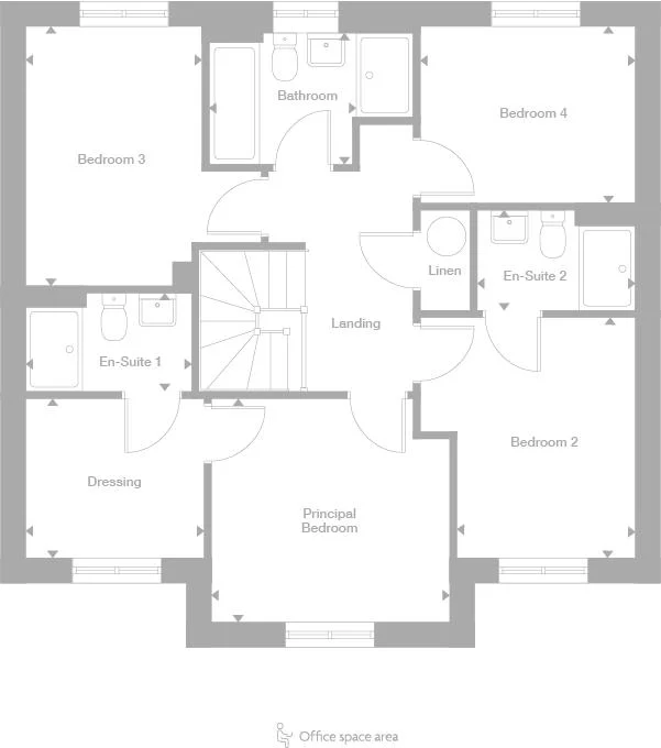
Roman Croft offers an exclusive range of executive homes with a desirable Priorslee address, just a 5 minutes from Telford and offering excellent connections to the A5 and M54. The four bedroom detached Sandalwood offers ample space for family life and is practical yet stylish. On the ground floor there is a stunning open plan family kitchen with breakfast area featuring double doors out to the garden and a laundry room off the kitchen. There is also a dedicated study, lounge and downstairs W/C. Upstairs there are four bedrooms, the luxurious principal bedroom with en-suite and dressing room, bedroom 2 also includes an en-suite plus a family bathroom and a useful linen cupboard. The property also benefits from off road parking, garage and gardens. Book an appointment to visit us, or pre-reserve your new home online on the Miller Homes website. Plot 7 Tenure: Freehold Length of lease: N/A Annual ground rent amount (£): N/A Ground rent review period (year/month): N/A Annual service charge amount (£): 150.00 Service charge review period (year/month): Yearly Council tax band (England, Wales and Scotland): TBC Reservation fee (£): 500 For more information about the optional extras available in our new homes, please visit the Miller Homes website.
- Open plan kitchen/diner with family area & French doors to the garden
- 14ft lounge
- Separate study
- Laundry room
- Downstairs WC
- Principal bedroom with dressing room & en-suite
- En-suite to bedroom 2
- Family bathroom with separate shower
- Garage & garden
- 10 year NHBC warranty
- Council Tax: Please confirm the council tax band with Miller Homes
- Tenure: Please confirm if this is a freehold or leasehold property with Miller Homes
























