4 bedroom detached house
The Willow is an attractive four bedroom detached home, which offers plenty of space to meet the needs of your family.
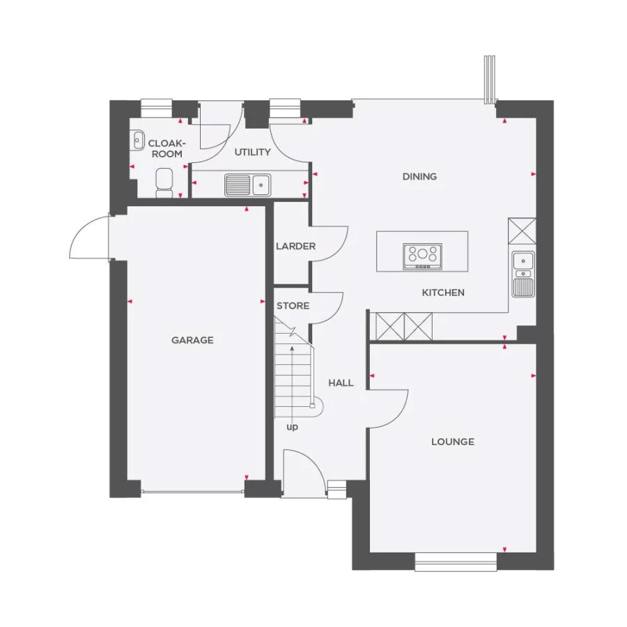
Off the hallway is a large lounge for you to comfortably relax in after a busy day. The open plan kitchen/diner at the rear will quickly become the hub of your family home. You’ll find space for both dining and family time thanks to the open plan layout. The kitchen island not only provides you with additional surface space, but also a great area for socialising with friends. Even better, the kitchen comes with a range of integrated appliances as standard.
You won’t find yourself short of storage, thanks to a handy understairs cupboard, further kitchen storage and a separate utility room and larder. Bi-Fold doors lead to the garden, creating a brilliant space for summer gatherings. The ground floor w/c is also a great addition too, especially when you have guests.
On the equally spacious first floor, you’ll find 4 bedrooms to choose from. Both the master and second bedroom come are accompanied by private en suites, while the rest of the family have a bathroom, so battling over the bathroom in the morning really will become a thing of the past. One of the bedrooms could easily double up as a home office if you wish.
If you’re looking for even more storage space, you’ll be spoiled for choice in The Willow thanks to a single integrated garage, how you choose to use the space is completely up to you.
The Willow comes complete with flooring throughout, turf to the garden, integrated kitchen appliances, and wardrobes to bedroom one, making it ready to move straight into.
EPC: B rating.
Estimated Completion Date: Aug 26 – Oct 26
Total Internal Area: 154 sq. m. 1,662 sq. ft.
- Kitchen diner with integrated appliances
- Seperate utility room
- Flooring throughout
- Integral garage
- En-suite and fitted wardrobes to bedroom 1
- Bi-fold doors to the garden
- Air source heat pump
- Energy efficient home
- Turf to the rear garden
- Council Tax: Please confirm the council tax band with Wain Homes
- Tenure: Please confirm if this is a freehold or leasehold property with Wain Homes























