3 bedroom semi detached house
The Chapel is a three-bedroom, two-storey new build home for sale, ideal for first-time buyers or anyone looking for a well-sized family space. This turnkey property makes smart use of every inch, creating comfortable living areas throughout.
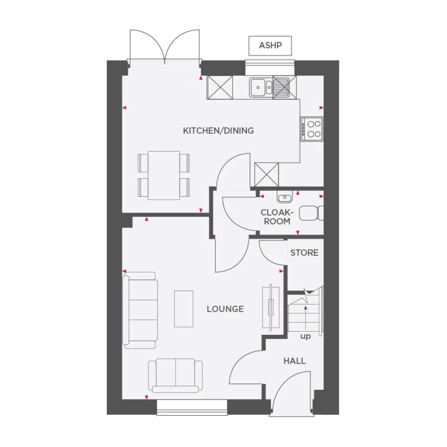
The ground floor features an inviting open-plan kitchen and dining area that flows into a separate lounge, offering flexibility for both everyday living and entertaining. Your luxury fitted kitchen comes with soft-close mechanisms and integrated AEG and Electrolux appliances, and a downstairs cloakroom rounds out the home’s living space.
Upstairs, the main bedroom is complete with fitted wardrobes and a private en-suite featuring a Roca vanity unit. Two further single bedrooms offer plenty of space for children, a study, or visiting family, all sharing a modern family bathroom.
Finished with carpets and premium Amtico flooring throughout, oak veneered doors, a turfed garden, and a roomy garage, The Chapel also includes an air source heat pump, EV charging point, ultrafast fibre broadband and a detached garage- giving you everything you need to settle in straight away.
EPC: B rating.
Estimated Completion Date: Sep 26 – Nov 26
Total Internal Area: 83 sq. m. 890 sq. ft.
- All-inclusive specification
- Integrated appliances, flooring, turf, fencing and more included
- 3 bedroom semi-detached home with detached garage
- Open-plan kitchen/diner
- Spacious lounge
- En-suite from bedroom 1
- French doors to rear garden
- Air Source Heat Pump in rear garden
- EV charging point
- 10 year NHBC warranty
- Council Tax: Please confirm the council tax band with Wain Homes
- Tenure: Please confirm if this is a freehold or leasehold property with Wain Homes













