4 bedroom detached house
On selected Charleswood homes at Windlestone Point, get UP TO 5% TOWARDS YOUR DEPOSIT or we could cover your selling fees with ASSISTED MOVE – ask us for details, T&Cs apply The CHARLESWOOD is an IMPRESSIVE 4 bedroom home with integral GARAGE. The stylish, inviting lounge complements the breath-taking OPEN PLAN kitchen, dining & family room running the length of the back of the property, perfect for lively social gatherings. There is also a useful LAUNDRY ROOM & downstairs wc. The principal bedroom is a RETREAT with a DRESSING ROOM & EN-SUITE & the further 3 bedrooms & family bathroom are of great size. With a 10-YEAR NHBC WARRANTY included, this fantastic 4 bedroom home at our Windlestone Point development in Chilton, could be your perfect family home. Plus, you’ll benefit from all the advantages that you get with a brand new home including LOWER ENERGY BILLS & LESS MAINTENANCE. The CHARLESWOOD SHOWHOME at Windlestone Point is now open, call in anytime during our opening hours to view it, no appointment is needed. Or speak to our Development Sales Manager to find out how we could help you move. Plot 53 Tenure: Freehold Length of lease: N/A Annual ground rent amount (£): N/A Ground rent review period (year/month): N/A Annual service charge amount (£): 139.00 Service charge review period (year/month): Yearly Council tax band (England, Wales and Scotland): E Reservation fee (£): 500 For more information about the optional extras available in our new homes, please visit the Miller Homes website. Plot 56 Tenure: Freehold Length of lease: N/A Annual ground rent amount (£): N/A Ground rent review period (year/month): N/A Annual service charge amount (£): 139.00 Service charge review period (year/month): Yearly Council tax band (England, Wales and Scotland): E Reservation fee (£): 500 For more information about the optional extras available in our new homes, please visit the Miller Homes website. Plot 59 Tenure: Freehold Length of lease: N/A Annual ground rent amount (£): N/A Ground rent review period (year/month): N/A Annual service charge amount (£): 139.00 Service charge review period (year/month): Yearly Council tax band (England, Wales and Scotland): E Reservation fee (£): 500 For more information about the optional extras available in our new homes, please visit the Miller Homes website. Plot 61 Tenure: Freehold Length of lease: N/A Annual ground rent amount (£): N/A Ground rent review period (year/month): N/A Annual service charge amount (£): 139.00 Service charge review period (year/month): Yearly Council tax band (England, Wales and Scotland): E Reservation fee (£): 500 For more information about the optional extras available in our new homes, please visit the Miller Homes website. Plot 66 Tenure: Freehold Length of lease: N/A Annual ground rent amount (£): N/A Ground rent review period (year/month): N/A Annual service charge amount (£): 139.00 Service charge review period (year/month): Yearly Council tax band (England, Wales and Scotland): E Reservation fee (£): 500 For more information about the optional extras available in our new homes, please visit the Miller Homes website. Plot 82 Tenure: Freehold Length of lease: N/A Annual ground rent amount (£): N/A Ground rent review period (year/month): N/A Annual service charge amount (£): 139.00 Service charge review period (year/month): Yearly Council tax band (England, Wales and Scotland): E Reservation fee (£): 500 For more information about the optional extras available in our new homes, please visit the Miller Homes website. Plot 87 Tenure: Freehold Length of lease: N/A Annual ground rent amount (£): N/A Ground rent review period (year/month): N/A Annual service charge amount (£): 139.00 Service charge review period (year/month): Yearly Council tax band (England, Wales and Scotland): E Reservation fee (£): 500 For more information about the optional extras available in our new homes, please visit the Miller Homes website. Plot 92 Tenure: Freehold Length of lease: N/A Annual ground rent amount (£): N/A Ground rent review period (year/month): N/A Annual service charge amount (£): 139.00 Service charge review period (year/month): Yearly Council tax band (England, Wales and Scotland): E Reservation fee (£): 500 For more information about the optional extras available in our new homes, please visit the Miller Homes website.
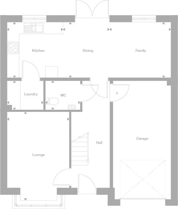
- Large open plan kitchen/dining/family area with french doors to rear garden
- Spacious lounge with feature bay window
- Fantastic principal bedroom with dressing area and en suite
- Three further good sized bedrooms
- Useful separate laundry room & downstairs WC
- Integral garage and driveway
- Showhome now open
- Surrounded by open countryside, just 10 mins drive from Durham City Centre with easy access to the A1(M)
- 10 year NHBC build warranty
- Miller Homes rated 5* for customer satisfaction
- Council Tax: Please confirm the council tax band with Miller Homes
- Tenure: Please confirm if this is a freehold or leasehold property with Miller Homes



























