3 bedroom detached house
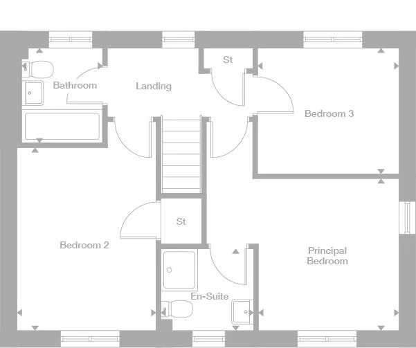
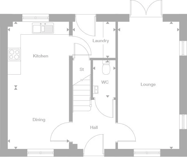
The 3 bedroom detached Clayton is a stylish home with plenty of practical features. Downstairs comprises of a 19ft lounge with French doors to the garden, open plan kitchen/diner, laundry room and a downstairs WC. Upstairs this home continues to impress with 3 well-proportioned bedrooms, a principal bedroom with en-suite, bedroom 3 would make an ideal study, family bathroom and built in storage cupboards to bedroom 2 and the landing. Outside the property benefits from a garage & gardens. Book an appointment to visit us, or you can pre-reserve your new home online on the Miller Homes website. Plot 46 Tenure: Freehold Length of lease: N/A Annual ground rent amount (£): N/A Ground rent review period (year/month): N/A Annual service charge amount (£): 150.00 Service charge review period (year/month): Yearly Council tax band (England, Wales and Scotland): TBC Reservation fee (£): 500 For more information about the optional extras available in our new homes, please visit the Miller Homes website.
- 19ft lounge with French doors to the garden
- Open-plan kitchen/diner
- Laundry room
- Energy efficient design - save up to £1,980 a year*
- Personalise your home with kitchen, flooring and more!
- Built in storage
- Principal bedroom with en-suite
- Bedroom 3 ideal study
- Garage
- Downstairs WC
- Council Tax: Please confirm the council tax band with Miller Homes
- Tenure: Please confirm if this is a freehold or leasehold property with Miller Homes























