New homes in Banwell, Weston Super-Mare

3 Qty-bedrooms
£340,000

Plot 45, Mead Fields, Weston Super-Mare, BS29 6FJ

Spinner
Spinner

Property Details Green-arrow

3 bedroom semi detached house

The Lilac is a three bedroom home with flexible family living space, set over three floors. Step inside and you’ll find a large lounge, with plenty of space to relax in after a busy day. To the rear is the open plan kitchen/diner, with french doors to the garden, creating a light, bright and airy home all year round. In the kitchen, you’ll find plenty of practical surface and storage space for your culinary creations and to hide away your pots and pans. There is also a handy downstairs cloakroom, especially useful when you have guests. 

The first floor is home to the main bedroom, which comes with a private en suite shower room and a wardrobe. If you’re looking to work from home, The Lilac is a brilliant home thanks to a seperate study, so you can keep both home and work life separate. However, if this space would work better as games room for you, then that’s totally fine too. You’ll also find a bathroom on this floor which is a brilliant for when you have guests.

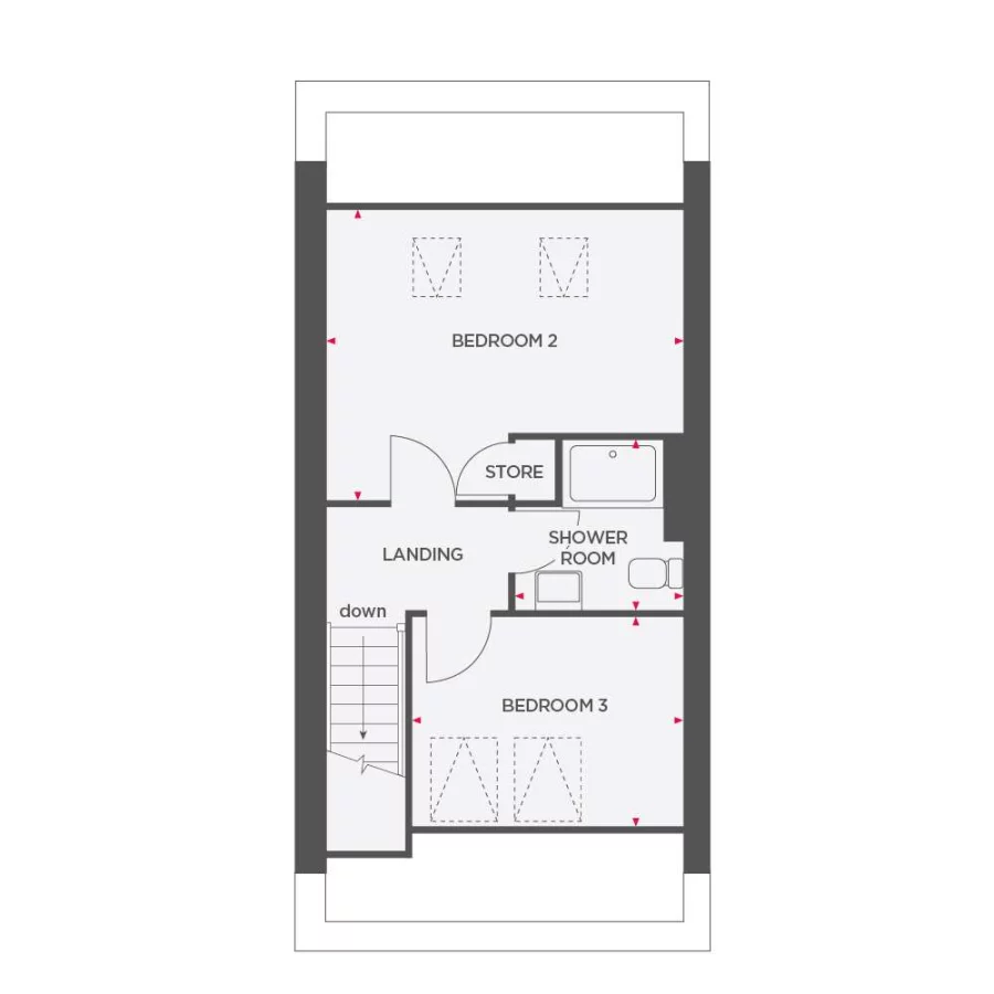
On the top floor, you’ll find a further two generously sized double bedrooms, as well as a further shower room. Battling over the bathroom in the morning really will become a thing of the past. 

Property Features:
Details added: 13/01/2026
Are we missing any purchase information? Click here to contact the developer

Floorplans Green-arrow

Floorplan:

Floorplan 900 3526176 1768269671

Floorplan:

Floorplan 900 3526186 1768269672

Floorplan:

Floorplan 900 3526196 1768269672

Map & Street view Green-arrow

Development Info Green-arrow

Mead Fields

Marmead Drive
Banwell
Weston Super-Mare
BS29 6FJ

View Full development

FIND YOUR KIND OF PERFECT IN WESTON-SUPER-MARE

Homes are selling fast – book your appointment on 01934312425 today to come and explore our two show homes, the 3 bedroom detached Holly, and the 4 bedroom detached Foxtail. 

THE DETAILS MATTER – THAT’S WHY THEY’RE ALL INCLUDED.
At Wain Homes, we don’t believe in hidden extras. What you see is what you get. Our homes at Mead Fields come with a premium all-inclusive specification, from contemporary flooring and integrated appliances to fitted wardrobes and fully finished kitchens in your choice of style – and so much more. And yes, it’s all included in the price! Get in touch today to find out more.

Nestled in the picturesque village of Banwell, just 4 miles from the vibrant seaside town of Weston-Super-Mare, Wain Homes at Mead Fields presents a stunning collection of new 2, 3, and 4-bedroom family homes. This charming development offers a perfect blend of rural tranquility and coastal allure, where you can enjoy the peaceful countryside alongside the stunning beaches of the North Somerset coast.

Mead Fields provides the ideal setting for families who want to embrace village life, with all the modern conveniences within easy reach. Local supermarkets, restaurants, and schools are just a stone’s throw away, making everyday errands a breeze. For those who need to travel further, the nearby M5 motorway ensures swift access to major towns and cities such as Exeter, Bristol, and Birmingham. Additionally, Worle railway station, just 1.2 miles away, offers direct train connections to Bristol, Bath Spa, and London Paddington, making commuting effortless.

To find out more about how an energy efficient Wain home could help you save on your bills, just click here.

Details added: 09/06/2025
Are we missing any purchase information? Click here to contact the developer

Mortgage Calculator Green-arrow


Disclaimer: The information contained in this site is for general guidance on matters of interest only and New Homes Place Limited holds no warranty for the accuracy of any development or property description or any linked or associated information. Computer generated images and photography are indicative and are intended for illustrative purposes only. They may not represent the actual furnishing and finishes of a property or development.
Spinner-transparent-turq