New homes in Dumbarton

4 Qty-bedrooms
£382,000

Plot 43, Chapel Gardens, Dumbarton, G82 4JH

Spinner
Spinner

Property Details Green-arrow

4 bedroom detached house

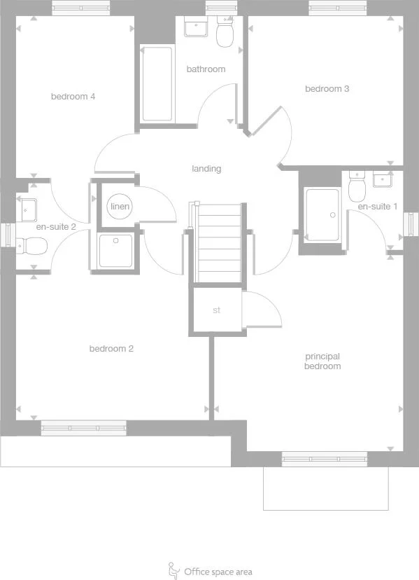
The Hartwood Chapel Gardens is a perfect four-bedroom family home, with the lounge beautifully lit by a feature square bay window. Double doors leading to the open plan kitchen and family dining area create a wonderfully open space. Sharing the ground floor is the handy downstairs WC. Upstairs, a shared shower room provides three of the four bedrooms with en-suite facilities. Plot 43 Tenure: Freehold Length of lease: N/A Annual ground rent amount (£): N/A Ground rent review period (year/month): N/A Annual service charge amount (£): 140.70 Service charge review period (year/month): Yearly Council tax band (England, Wales and Scotland): TBC Reservation fee (£): 500 For more information about the optional extras available in our new homes, please visit the Miller Homes website.

Property Features:
Details added: 19/07/2025
Are we missing any purchase information? Click here to contact the developer

Floorplans Green-arrow

Floorplan:

Floorplan 900 3572256 1775268333

Floorplan:

Floorplan 900 3572246 1775268333

Map & Street view Green-arrow

Development Info Green-arrow

Chapel Gardens

Havoc Road
Dumbarton
G82 4JH

View Full development

Welcome to Chapel Gardens…

Close to shops and services, as well as some of Scotland’s most impressive natural scenery, Chapel Gardens is also served by excellent transport links. Trains from Dalreoch Station, three quarters of a mile away, reach Queen Street Station in less than half an hour and call at destinations throughout Glasgow and central Scotland before arriving in Edinburgh. Additional services to Glasgow Central and Balloch bring Loch Lomond within a ten-minute train trip. Buses between Helensburgh and Glasgow stop a few yards away, and National Cycle Route 7, extending northwards via Balloch into the Highlands, passes a few yards from Dalreoch Station.

There is a convenience store, a pharmacy, a newsagent and a choice of takeaways within a ten minute walk of Chapel Gardens. Around a mile away, Dumbarton High Street can be reached via the pleasant Shore Circular Walk along the Clyde. The High Street and Artizan Shopping Centre present fashion outlets, banks, supermarkets and local traders, interspersed with pubs, cafes and restaurants. A little further east, St James Retail Centre incorporates larger stores such as Asda, M&S, B&M, Argos and Halfords, with Morrisons and Lidl supermarkets nearby.

The Meadow Centre on Dumbarton Common includes a swimming pool, fitness and health suites and a sports hall, and Dumbarton Golf Club is complemented by additional nearby courses at Cardross and Vale of Leven. As well as the dramatic Dumbarton Rock and Castle, local attractions include Denny Civic Theatre, which presents live music and drama, and the Scottish Maritime Museum, with its enormous Ship Model Tank where experimental designs were tested. 

One of the most outstanding features of Chapel Gardens, however, is its proximity to magnificent outdoor amenities. There are delightful Clydesdale walks nearby and Balloch Country Park and the vast Loch Lomond and the Trossachs National Park are just five miles away. Local green spaces include nearby Cunninghame Graham Memorial Park and Dumbarton’s vast Levengrove Park, and there are extensive walking and cycling routes leading further afield, taking in reservoirs, lochs and community woodlands.

Dalreoch Primary and St Michael’s RC Primary schools are both within a mile of Chapel Gardens, and secondary is provided by Dumbarton Academy in the town centre and Our Lady & St Patrick’s High School in the north of the town. Dumbarton Health Centre houses five GP practices and a spectrum of specialist services, and Levengrove Dental Care is the nearest of Dumbarton’s three dental surgeries.

Details added: 24/09/2024
Are we missing any purchase information? Click here to contact the developer

Mortgage Calculator Green-arrow


Disclaimer: The information contained in this site is for general guidance on matters of interest only and New Homes Place Limited holds no warranty for the accuracy of any development or property description or any linked or associated information. Computer generated images and photography are indicative and are intended for illustrative purposes only. They may not represent the actual furnishing and finishes of a property or development.
Spinner-transparent-turq