4 bedroom detached house
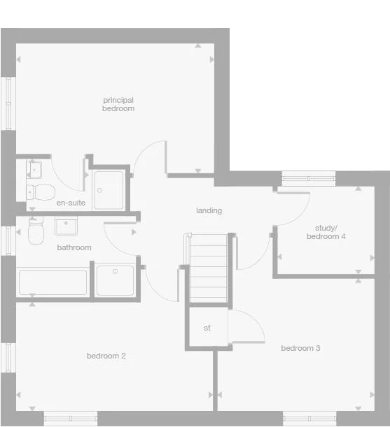
All the main downstairs rooms are dual aspect, with a bay window in the dining room and French doors in both the lounge and the family kitchen accentuating the exceptionally light, spacious ambience. Bedroom two is also dual aspect, and the principal bedroom is en-suite. Plot 4 Tenure: Freehold Length of lease: N/A Annual ground rent amount (£): N/A Ground rent review period (year/month): N/A Annual service charge amount (£): 350.00 Service charge review period (year/month): Yearly Council tax band (England, Wales and Scotland): TBC Reservation fee (£): 1000 For more information about the optional extras available in our new homes, please visit the Miller Homes website.
Property Features:
- Open plan kitchen/family room with French doors to the rear garden
- Separate dual aspect dining room with feature bay window
- Spacious dual aspect lounge
- Separate laundry room
- Principal bedroom with en-suite
- Garage plus parking
- Council Tax: Please confirm the council tax band with Miller Homes
- Tenure: Please confirm if this is a freehold or leasehold property with Miller Homes
Details added: 09/01/2026
Are we missing any purchase information? Click here to contact the developer

























