3 bedroom detached house
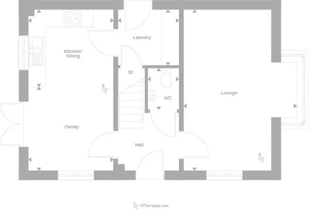
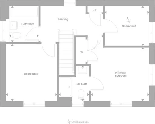
The 3 bedroom detached Eaton is a stylish yet practical home. Downstairs comprises of an 18ft lounge with feature bay window, open plan kitchen/diner with French doors to the garden, laundry room, downstairs WC and storage under the stairs. Upstairs this home continues to impress with 3 well proportioned bedrooms, an en-suite to the principal bedroom, family bathroom and built in storage cupboard off the landing. The property also benefits from off road parking, garage and gardens. Book an appointment to see us or you can pre-reserve your new home online on the Miller Homes website. Miller Homes @ Cleve Wood offers 2-5 bedroom homes in the popular market town of Thornbury. Located off Morton Way, this stunning development offers easy access to Bristol and the West Midlands via quick connections to the A38 and M5. Plot 333 Tenure: Freehold Length of lease: N/A Annual ground rent amount (£): N/A Ground rent review period (year/month): N/A Annual service charge amount (£): 158.00 Service charge review period (year/month): Yearly Council tax band (England, Wales and Scotland): TBC Reservation fee (£): 500 For more information about the optional extras available in our new homes, please visit the Miller Homes website.
- 18ft lounge with feature bay window
- Open plan kitchen/diner with French doors to the garden
- Laundry room
- Energy efficient design
- Personalise your home with kitchen, flooring and more!
- Principal bedroom with en-suite
- Bedrooms 2 or 3 ideal home working spaces
- Selected plots with garages - ask for details
- Garden
- Downstairs WC
- Council Tax: Please confirm the council tax band with Miller Homes
- Tenure: Please confirm if this is a freehold or leasehold property with Miller Homes
























