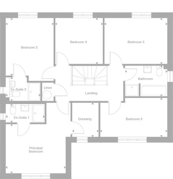
5 bedroom detached house
From the assured elegance of the BAY WINDOWED LOUNGE to the FIVE BEDROOMS, two of them EN-SUITE and one with a DRESSING ROOM, this is a breathtakingly impressive home. The L- shaped FAMILY KITCHEN, with its FRENCH DOORS and galley-style workspace, is perfect for large, lively gatherings. Plot 306 Tenure: Freehold Length of lease: N/A Annual ground rent amount (£): N/A Ground rent review period (year/month): N/A Annual service charge amount (£): 240.00 Service charge review period (year/month): Yearly Council tax band (England, Wales and Scotland): TBC Reservation fee (£): 1000 For more information about the optional extras available in our new homes, please visit the Miller Homes website.
- Double garage
- Feature bay window
- Open-plan layout
- French doors to rear
- Separate laundry
- 5 bedrooms
- Dressing room
- 2 En-suites
- 10-year NHBC warranty
- Council Tax: Please confirm the council tax band with Miller Homes
- Tenure: Please confirm if this is a freehold or leasehold property with Miller Homes























