4 bedroom detached house
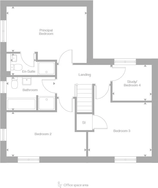
The bay windowed family room adjoins a kitchen dining room with French doors, creating a breath-taking triple aspect space. French doors enhance the dual aspect lounge and a laundry and downstairs WC complete the ground floor layout. Upstairs the principal bedroom is en-suite, another is dual aspect and storage is available in bedroom three. Plot 2 Tenure: Freehold Length of lease: N/A Annual ground rent amount (£): N/A Ground rent review period (year/month): N/A Annual service charge amount (£): 290.00 Service charge review period (year/month): Yearly Council tax band (England, Wales and Scotland): TBC Reservation fee (£): 500 For more information about the optional extras available in our new homes, please visit the Miller Homes website.
- Open plan kitchen/diner with family area & French doors to the garden
- 14ft lounge
- Separate study
- Laundry room
- Downstairs WC
- Principal bedroom with dressing room & en-suite
- En-suite to bedroom 2
- Family bathroom with separate shower
- Garage & garden
- 10 year NHBC warranty
- Council Tax: Please confirm the council tax band with Miller Homes
- Tenure: Please confirm if this is a freehold or leasehold property with Miller Homes
































