5 bedroom detached house
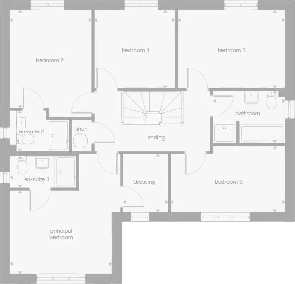
Incorporating feature french doors, the welcoming family and dining room extends into a stylish, practical kitchen, forming a focal point for lively family life and perfectly complementing the more formal baywindowed lounge. The master bedroom, one of two with en-suite facilities, includes a dressing room. Plot 156 Tenure: Freehold Length of lease: N/A Annual ground rent amount (£): N/A Ground rent review period (year/month): N/A Annual service charge amount (£): 210.00 Service charge review period (year/month): Yearly Council tax band (England, Wales and Scotland): TBC Reservation fee (£): 1000 For more information about the optional extras available in our new homes, please visit the Miller Homes website.
Property Features:
- Double garage
- Feature bay window
- Open-plan layout
- French doors to rear
- Separate laundry
- 5 bedrooms
- Dressing room
- 2 En-suites
- 10-year NHBC warranty
- Council Tax: Please confirm the council tax band with Miller Homes
- Tenure: Please confirm if this is a freehold or leasehold property with Miller Homes
Details added: 16/11/2025
Are we missing any purchase information? Click here to contact the developer




































