5 bedroom detached house
The Cavendish is a five bedroom detached home, which provides flexible living spaces to accommodate the needs of growing families. Downstairs is made up of a large lounge with walk-in bay window. You’ll find plenty of space for the whole family to relax after a busy day. The kitchen/diner will become the hub of your home, offering plenty of space for meal preparation, family meal times and socialising. French doors lead from the kitchen to the garden, creating a light, bright and airy home all year round. You can hide away any clutter in the handy utility, making it a great additional storage space.
If you’re looking to work from home, The Cavendish comes with a ground floor study. However, if a gym or games room would work better for you, then that’s totally fine too. A double integral garage completes the ground floor layout, providing you with ample storage options.
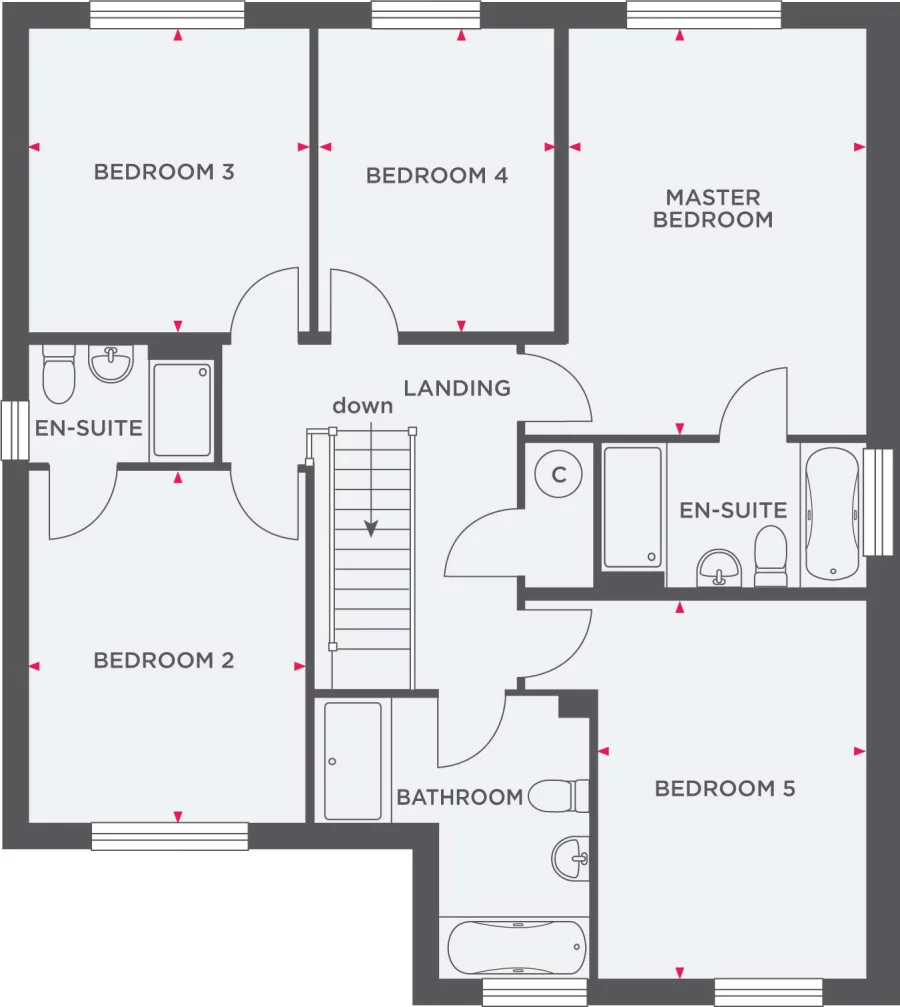
On the equally spacious first floor, you’ll find 5 bedrooms to choose from. Both the master and second bedroom come with private en suites, while the rest of the family have a bathroom with separate shower to share. Battling over the bathroom in the morning really will become a thing of the past. A further three good-sized bedrooms make up The Cavendish, ensuring there’s plenty of space for friends and family to stay too.
- Reserve for £99*
- New lower price
- Stamp Duty Paid worth up to £16,250*
- *Offer ends 28th February. T&Cs apply
- Final home remaining!
- South facing garden
- Flooring throughout & turf included!
- Cul de sac location
- Opposite open space
- Double garage
- Council Tax: Please confirm the council tax band with Wain Homes
- Tenure: Please confirm if this is a freehold or leasehold property with Wain Homes




























