4 bedroom detached house
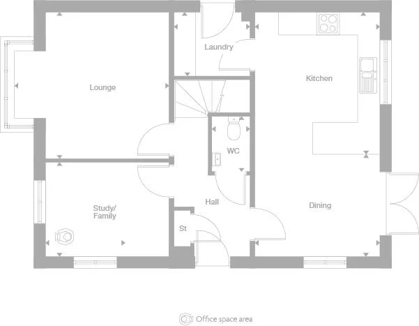
The Beauwood is a stunning four bedroom home, one of our first at the much anticipated Miller Homes development, The Choristers. From the hall to the four dual aspect rooms, including a superb study, this home delivers a succession of delights. The lounge is lit by a feature bay, the exciting, attractive dining kitchen includes french doors, and the four bedrooms include a luxurious principal suite. The Choristers offers a premium collection of 2, 3, 4 & 5 bedroom energy-efficient homes on the edge of historic Lichfield, blending semi-rural charm with modern style. Ideally located for commuters, it is just a short walk from Lichfield Trent Valley station and minutes from the A38, providing a perfect balance of countryside living and city convenience. Visit us Thursday to Monday 10.30am to 5.30pm to find out more, and reserve your new home from plan. Plot 14 Tenure: Freehold Length of lease: N/A Annual ground rent amount (£): N/A Ground rent review period (year/month): N/A Annual service charge amount (£): 212.50 Service charge review period (year/month): Yearly Council tax band (England, Wales and Scotland): TBC Reservation fee (£): 1000 For more information about the optional extras available in our new homes, please visit the Miller Homes website. Plot 124 Tenure: Freehold Length of lease: N/A Annual ground rent amount (£): N/A Ground rent review period (year/month): N/A Annual service charge amount (£): 212.50 Service charge review period (year/month): Yearly Council tax band (England, Wales and Scotland): TBC Reservation fee (£): 1000 For more information about the optional extras available in our new homes, please visit the Miller Homes website.
- Open plan kitchen dining room with french doors to the garden
- Bright lounge with a bay window
- Dedicated study/family room
- Separate laundry room
- En-suite to principal bedroom
- Garage plus parking spaces
- Council Tax: Please confirm the council tax band with Miller Homes
- Tenure: Please confirm if this is a freehold or leasehold property with Miller Homes



























