4 bedroom detached house
The bay windowed family room adjoins a kitchen/dining area with french doors, creating a breathtaking triple aspect space. French doors enhance the dual aspect lounge, there is a laundry room, a downstairs WC and an upstairs study. One bedroom has an en-suite and another is dual aspect. Plot 124 Tenure: Freehold Length of lease: N/A Annual ground rent amount (£): N/A Ground rent review period (year/month): N/A Annual service charge amount (£): 288.33 Service charge review period (year/month): Yearly Council tax band (England, Wales and Scotland): E Reservation fee (£): 500 For more information about the optional extras available in our new homes, please visit the Miller Homes website. Plot 167 Tenure: Freehold Length of lease: N/A Annual ground rent amount (£): N/A Ground rent review period (year/month): N/A Annual service charge amount (£): 288.33 Service charge review period (year/month): Yearly Council tax band (England, Wales and Scotland): E Reservation fee (£): 500 For more information about the optional extras available in our new homes, please visit the Miller Homes website.
- Open plan kitchen/family room with French doors to the rear garden
- Separate dual aspect dining room with feature bay window
- Spacious dual aspect lounge
- Separate laundry room
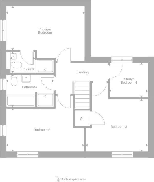
- Principal bedroom with en-suite
- 10 year NHBC warranty
- 5 star builder (HBF). More than 90% of customers would recommend Miller Homes to their friends and family
- Garage Plus Parking Spaces
- Council Tax: Please confirm the council tax band with Miller Homes
- Tenure: Please confirm if this is a freehold or leasehold property with Miller Homes


































