5 bedroom detached house
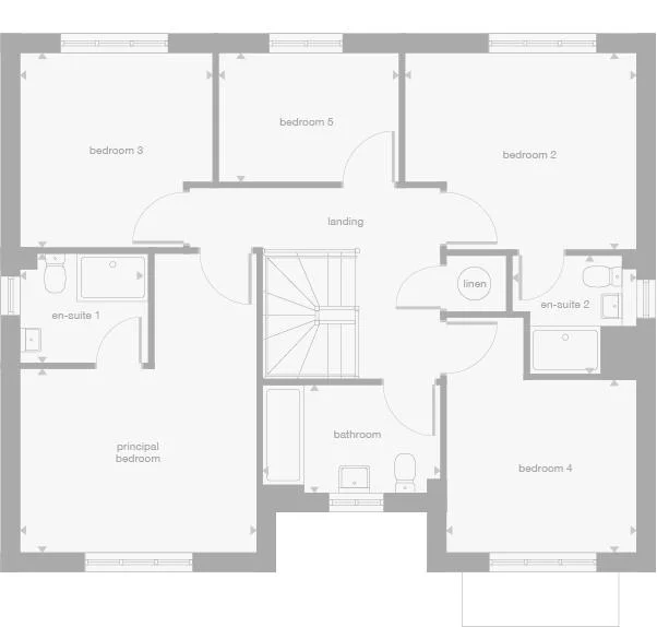
Prestigious 5-bedroom family home designed for modern living. The impressive open-plan kitchen/dining/family area features French doors opening to the garden, creating a bright and sociable hub. A separate laundry room keeps everyday tasks neatly out of the way. A bay-windowed lounge provides a stylish space to relax, entertain, or unwind. Upstairs, the layout offers flexibility for family life, with four bedrooms alongside a family bathroom, ensuring comfort for everyone.The principal bedroom boasts a luxurious en-suite, complemented by a second en-suite bedroom, combining privacy with practicality. This is a truly prestigious home, perfect for modern family living. Plot 118 Tenure: Freehold Length of lease: N/A Annual ground rent amount (£): N/A Ground rent review period (year/month): N/A Annual service charge amount (£): 169.43 Service charge review period (year/month): Yearly Council tax band (England, Wales and Scotland): F Reservation fee (£): 500 For more information about the optional extras available in our new homes, please visit the Miller Homes website.
- Open plan kitchen family dining area
- Separate lounge
- French doors to rear garden
- Flexible space for home office
- Principal bedroom with en-suite
- Bedroom 2 with en-suite
- Downstairs WC
- Handy storage
- Laundry
- Extended garage
- Council Tax: Please confirm the council tax band with Miller Homes
- Tenure: Please confirm if this is a freehold or leasehold property with Miller Homes






















