3 bedroom semi detached house
The Lime is a brilliant split-level home, offering you plenty of space to live just how you like it. Constructed to the highest specifications, the property is built with practicality at its heart. Off the hallway you’ll find a spacious lounge, with plenty of room for the whole family to relax after a busy day. Understairs storage can be accessed via your hallway, for all those coats and shoes to be kept tidy.
An open plan kitchen/dining room is accessible via the hallway. This open plan layout makes spending time with the family easy. You can keep a watchful eye on homework duties, while catching up over a cuppa with friends and family. You’ll also find access to your garden through a set of French doors, creating a light, bright and airy home. The downstairs cloakroom is a great addition, especially when you have guests.
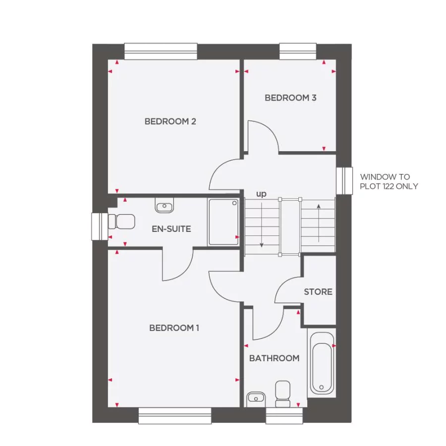
The first floor is home to three good sized bedrooms. The main bedroom comes with a private en-suite shower room, making getting ready in the morning a smooth and simple process. The rest of the family have a bathroom to share. If you’re looking to work from home, one of the bedrooms could comfortably double up as a home office, allowing you to keep work and home life separate.
EPC: B rating.
Estimated Completion Date: Jun 26 – Aug 26
Total Internal Area: 91 sq. m. 980 sq. ft.
- £10,000 deposit boost if reserved by 27/03/2025. T&Cs apply
- Large west facing garden
- Detached garage
- Semi-detached energy efficient home
- Overlooking open meadows
- All-inclusive specification
- More included as standard
- En-suite to bedroom 1
- 4 bedrooms
- 10 Year Warranty
- Council Tax: Please confirm the council tax band with Wain Homes
- Tenure: Please confirm if this is a freehold or leasehold property with Wain Homes
























